| Κωδ. Διαγρ. | Περιφερειακή Ενότητα | Δήμος κατά ΦΕΚ / Κοινότητα | Θέση | Αριθμός και Έτος ΦΕΚ | Αριθμός Πράξης | Τύπος Διαγράμματος | Πινακίδα | Ενέργειες | ||
|---|---|---|---|---|---|---|---|---|---|---|
| 30624 | Π.Ε. ΧΑΝΙΩΝ | ΧΑΝΙΑ | - | 1032 / 2005 | 34237 | ΠΡΩΤΟΤΥΠΟ | ΚΑΤΟΨΗ ΥΠΟΓΕΙΟΥ | Προβολή | ||
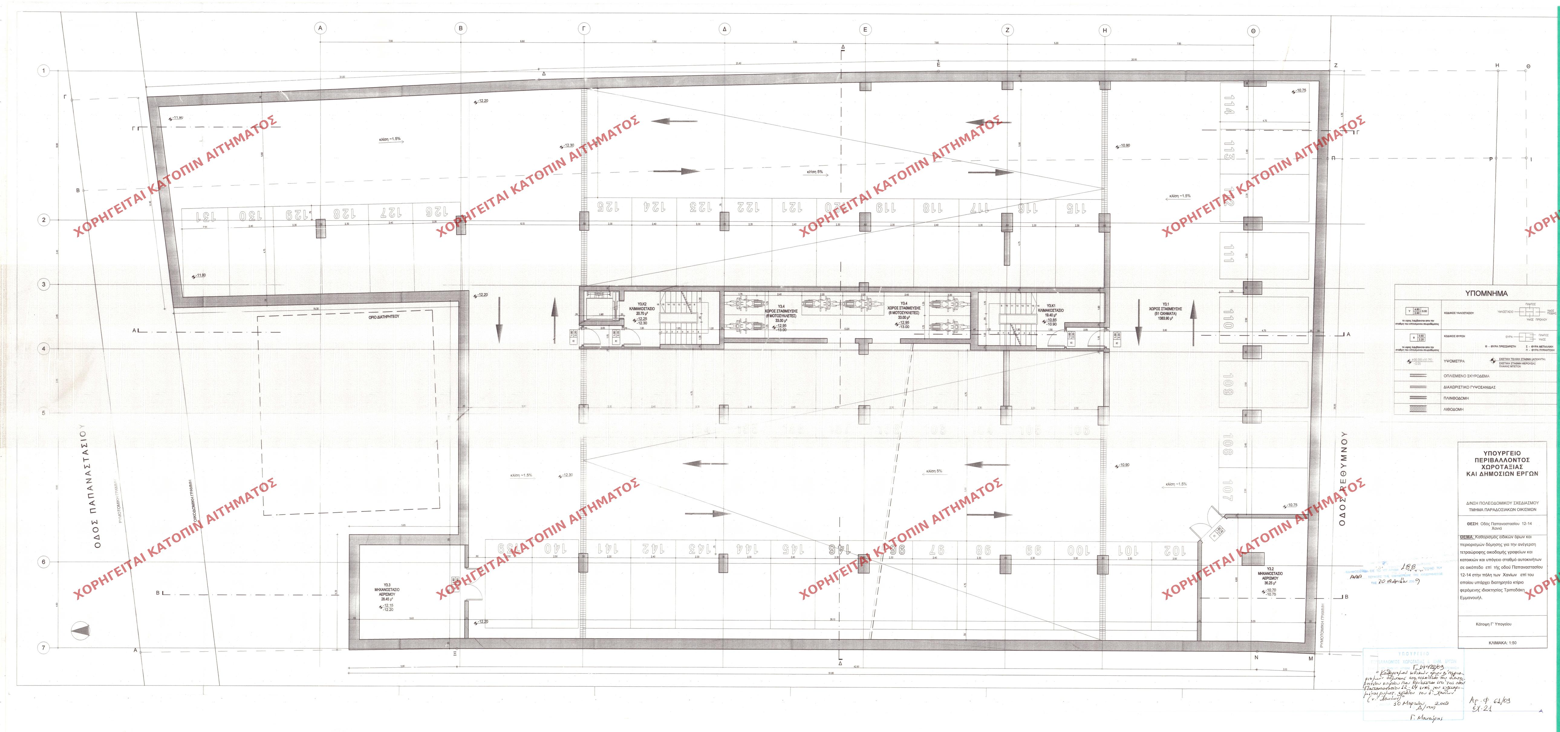
| 30636 | Π.Ε. ΧΑΝΙΩΝ | ΧΑΝΙΑ | - | 188 / 2009 | 14422 | ΠΡΩΤΟΤΥΠΟ | ΚΑΤΟΨΗ Γ ΥΠΟΓΕΙΟΥ | Προβολή | ||
| 30637 | Π.Ε. ΧΑΝΙΩΝ | ΧΑΝΙΑ | - | 188 / 2009 | 14422 | ΠΡΩΤΟΤΥΠΟ | ΤΟΜΗ Γ-Γ | Προβολή | ||
| 30638 | Π.Ε. ΧΑΝΙΩΝ | ΧΑΝΙΑ | - | 188 / 2009 | 14422 | ΠΡΩΤΟΤΥΠΟ | ΔΙΑΓΡΑΜΜΑ ΚΑΛΥΨΗΣ ΚΑΙ ΔΙΑΜΟΡΦΩΣΗ ΑΚΑΛΥ | Προβολή | ||
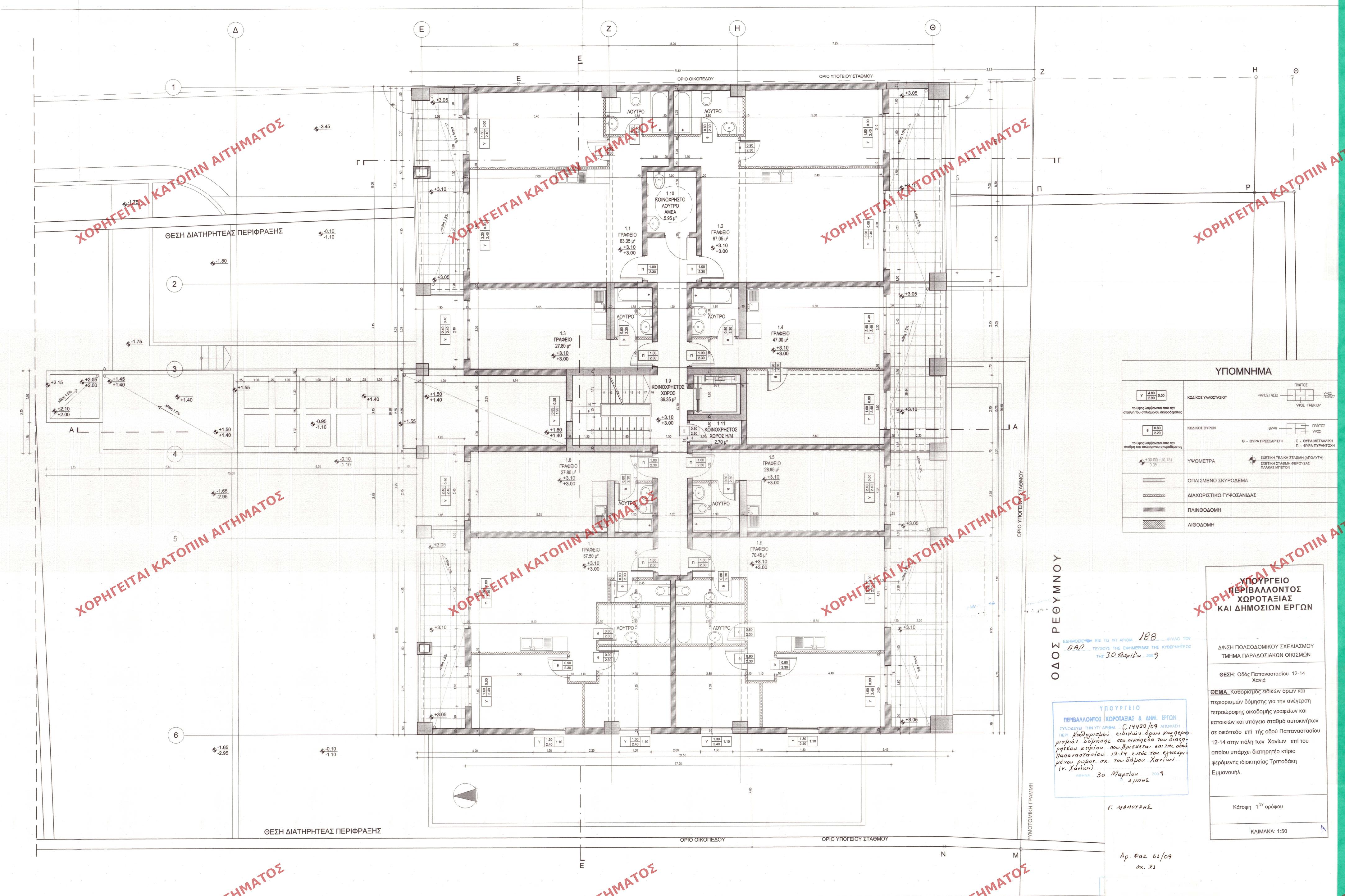
| 30639 | Π.Ε. ΧΑΝΙΩΝ | ΧΑΝΙΑ | - | 188 / 2009 | 14422 | ΠΡΩΤΟΤΥΠΟ | ΚΑΤΟΨΗ 1ου ΟΡΟΦΟΥ | Προβολή | ||
| 30641 | Π.Ε. ΧΑΝΙΩΝ | ΧΑΝΙΑ | - | 40 / 1978 | 38289 | ΔΗΜΟΣΙΕΥΜΕΝΟ ΣΕ ΦΕΚ | 01 | Προβολή | ||
| 30642 | Π.Ε. ΧΑΝΙΩΝ | ΧΑΝΙΑ | - | 188 / 2009 | 14422 | ΠΡΩΤΟΤΥΠΟ | ΤΟΜΗ Δ-Δ | Προβολή | ||
| 30643 | Π.Ε. ΧΑΝΙΩΝ | ΧΑΝΙΑ | - | 188 / 2009 | 14422 | ΠΡΩΤΟΤΥΠΟ | ΤΟΜΗ Β-Β | Προβολή | ||
| 30644 | Π.Ε. ΧΑΝΙΩΝ | ΧΑΝΙΑ | - | 188 / 2009 | 14422 | ΠΡΩΤΟΤΥΠΟ | ΚΑΤΟΨΗ ΔΩΜΑΤΟΣ | Προβολή | ||
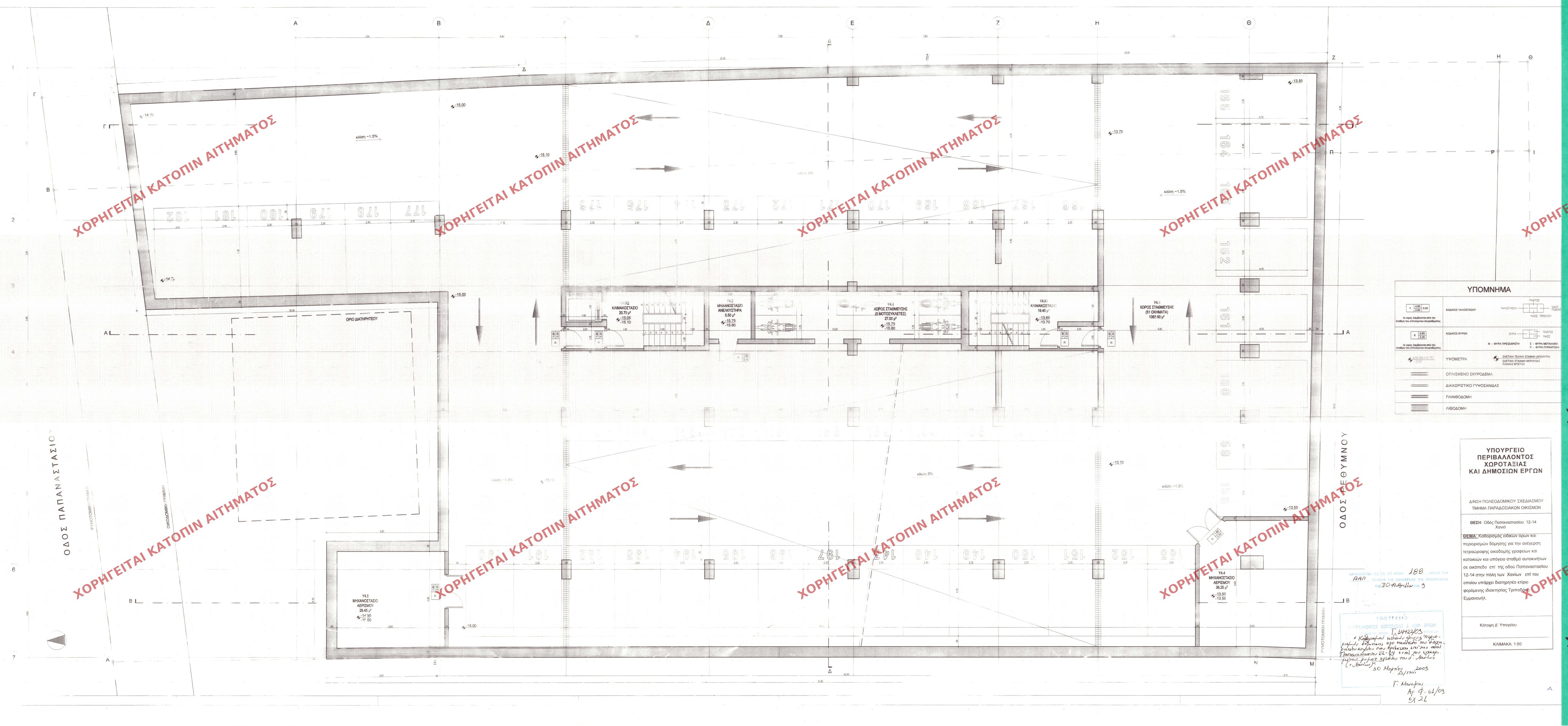
| 30645 | Π.Ε. ΧΑΝΙΩΝ | ΧΑΝΙΑ | - | 188 / 2009 | 14422 | ΠΡΩΤΟΤΥΠΟ | ΚΑΤΟΨΗ Δ ΥΠΟΓΕΙΟΥ | Προβολή | ||
| 30554 | Π.Ε. ΧΑΝΙΩΝ | ΧΑΝΙΑ | - | 38 / 2007 | 914 | ΠΡΩΤΟΤΥΠΟ | ΑΝΕΞΑΡΤΗΤΟ ΚΤΙΡΙΟ | Προβολή | ||
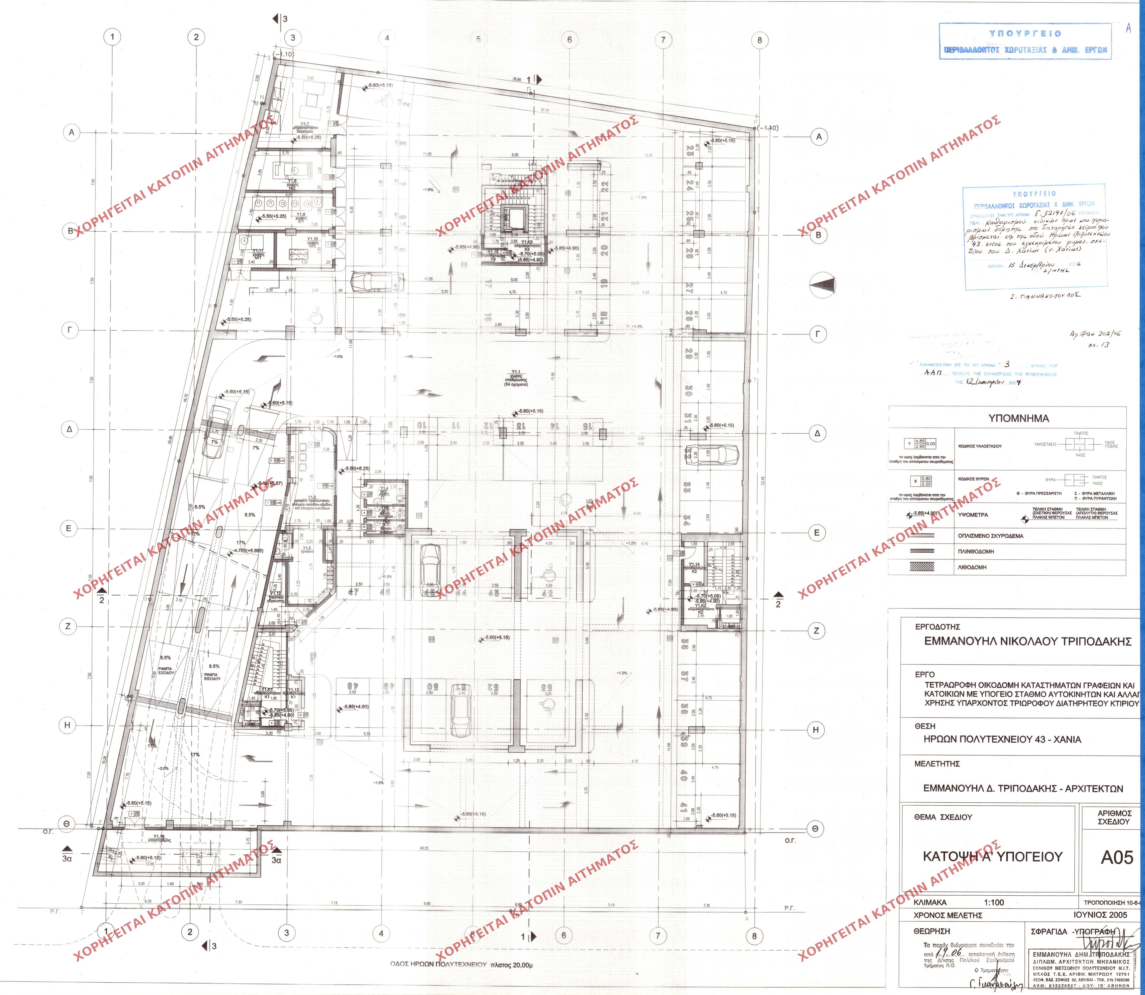
| 30564 | Π.Ε. ΧΑΝΙΩΝ | ΧΑΝΙΑ | - | 3 / 2007 | 52197 | ΠΡΩΤΟΤΥΠΟ | ΚΑΤΟΨΗ Δ ΟΡΟΦΟΥ | Προβολή | ||
| 30562 | Π.Ε. ΧΑΝΙΩΝ | ΧΑΝΙΑ | - | 3 / 2007 | 52197 | ΠΡΩΤΟΤΥΠΟ | 05 | Προβολή | ||
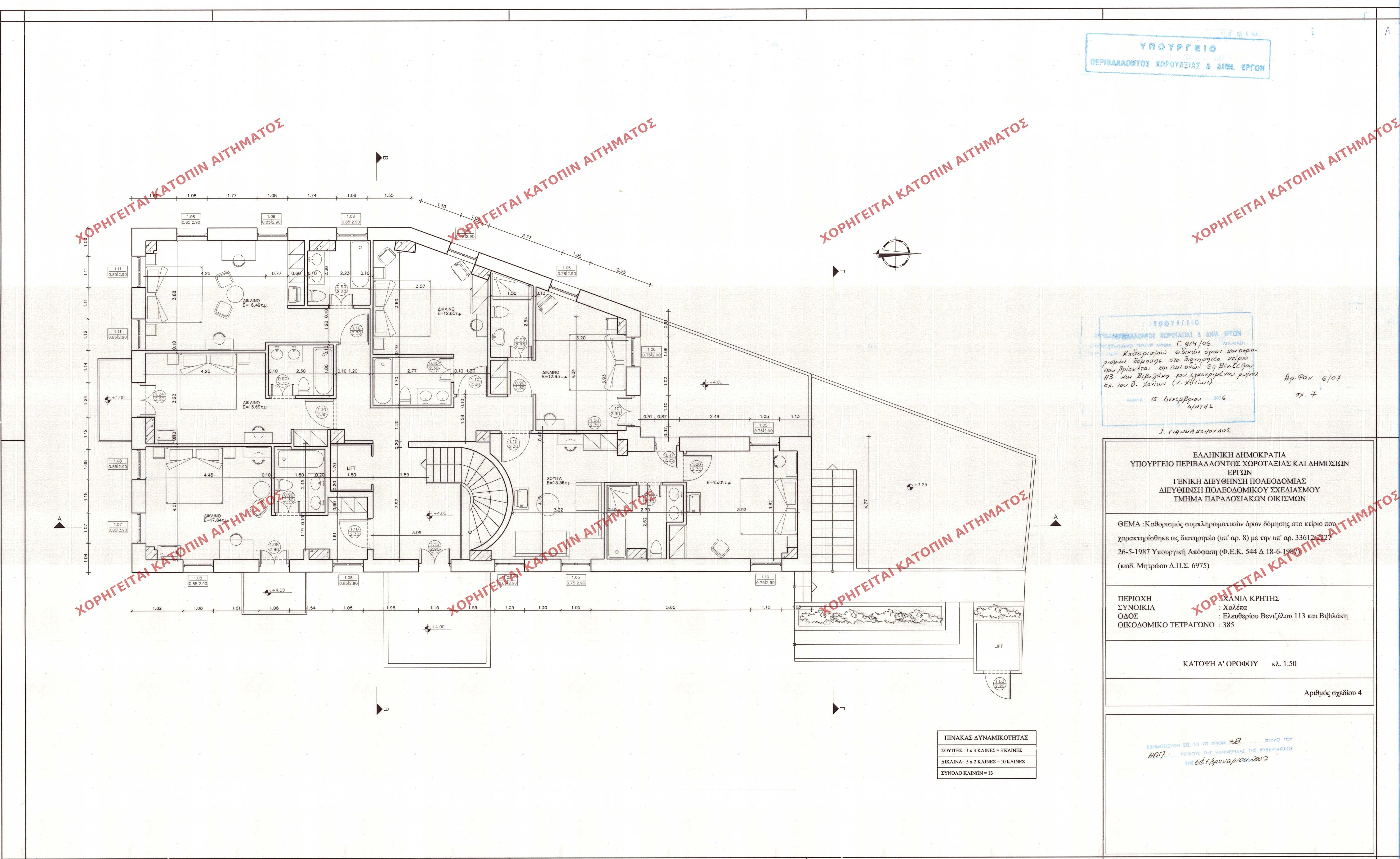
| 30561 | Π.Ε. ΧΑΝΙΩΝ | ΧΑΝΙΑ | - | 3 / 2007 | 52197 | ΠΡΩΤΟΤΥΠΟ | ΚΑΤΟΨΗ Α ΟΡΟΦΟΥ | Προβολή | ||
| 30560 | Π.Ε. ΧΑΝΙΩΝ | ΧΑΝΙΑ | - | 3 / 2007 | 52197 | ΠΡΩΤΟΤΥΠΟ | ΚΑΤΟΨΗ Β ΟΡΟΦΟΥ | Προβολή | ||
| 30559 | Π.Ε. ΧΑΝΙΩΝ | ΧΑΝΙΑ | - | 3 / 2007 | 52197 | ΠΡΩΤΟΤΥΠΟ | ΚΑΤΟΨΗ ΔΩΜΑΤΟΣ | Προβολή | ||
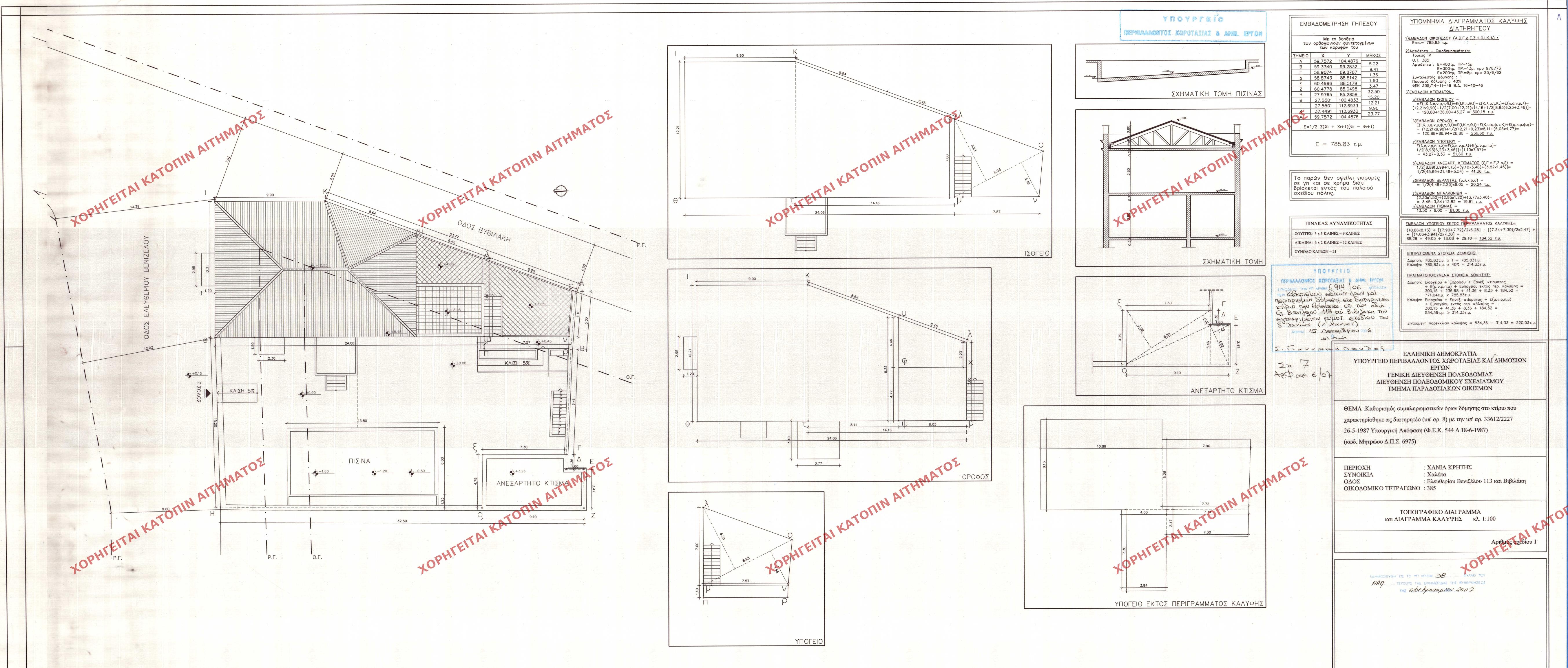
| 30558 | Π.Ε. ΧΑΝΙΩΝ | ΧΑΝΙΑ | - | 3 / 2007 | 52197 | ΠΡΩΤΟΤΥΠΟ | ΔΙΑΓΡΑΜΜΑ ΚΑΛΥΨΗΣ | Προβολή | ||
| 30557 | Π.Ε. ΧΑΝΙΩΝ | ΧΑΝΙΑ | - | 38 / 2007 | 914 | ΠΡΩΤΟΤΥΠΟ | ΤΟΠΟΓΡΑΦΙΚΟ ΔΙΑΓΡΑΜΜΑ | Προβολή | ||
| 30622 | Π.Ε. ΧΑΝΙΩΝ | ΧΑΝΙΑ | - | 1032 / 2005 | 34237 | ΠΡΩΤΟΤΥΠΟ | ΚΑΤΟΨΗ Β ΟΡΟΦΟΥ | Προβολή | ||
| 30555 | Π.Ε. ΧΑΝΙΩΝ | ΧΑΝΙΑ | - | 38 / 2007 | 914 | ΠΡΩΤΟΤΥΠΟ | ΚΑΤΟΨΗ Α ΟΡΟΦΟΥ | Προβολή |