| Κωδ. Διαγρ. | Περιφερειακή Ενότητα | Δήμος κατά ΦΕΚ / Κοινότητα | Θέση | Αριθμός και Έτος ΦΕΚ | Αριθμός Πράξης | Τύπος Διαγράμματος | Πινακίδα | Ενέργειες | ||
|---|---|---|---|---|---|---|---|---|---|---|
| 43360 | Π.Ε. ΑΤΤΙΚΗΣ | ΑΘΗΝΑ | - | 244 / 2008 | 23478 | ΠΡΩΤΟΤΥΠΟ | ΚΑΤΟΨΗ ΗΜΙΟΡΟΦΟΥ | Προβολή | ||
| 43340 | Π.Ε. ΑΤΤΙΚΗΣ | ΑΘΗΝΑ | - | 139 / 2008 | 13631 | ΠΡΩΤΟΤΥΠΟ | ΔΙΑΓΡΑΜΜΑ ΚΑΛΥΨΗΣ | Προβολή | ||
| 43341 | Π.Ε. ΑΤΤΙΚΗΣ | ΑΘΗΝΑ | - | 326 / 2008 | 30762 | ΠΡΩΤΟΤΥΠΟ | ΚΑΤΟΨΗ Β ΟΡΟΦΟΥ | Προβολή | ||
| 43290 | Π.Ε. ΑΤΤΙΚΗΣ | ΑΘΗΝΑ | - | 298 / 2009 | 23713 | ΠΡΩΤΟΤΥΠΟ | ΤΟΜΗ Α-Α | Προβολή | ||
| 43286 | Π.Ε. ΑΤΤΙΚΗΣ | ΑΘΗΝΑ | - | 141 / 2009 | 10526 | ΠΡΩΤΟΤΥΠΟ | ΚΑΤΟΨΗ ΙΣΟΓΕΙΟΥ Β | Προβολή | ||
| 43404 | Π.Ε. ΑΤΤΙΚΗΣ | ΑΘΗΝΑ | - | 139 / 2008 | 13631 | ΠΡΩΤΟΤΥΠΟ | ΤΟΜΗ Α-Α | Προβολή | ||
| 43403 | Π.Ε. ΑΤΤΙΚΗΣ | ΑΘΗΝΑ | - | 150 / 2008 | 13793 | ΠΡΩΤΟΤΥΠΟ | 05 | Προβολή | ||
| 43402 | Π.Ε. ΑΤΤΙΚΗΣ | ΑΘΗΝΑ | - | 100 / 2011 | 17351 | ΠΡΩΤΟΤΥΠΟ | 01 | Προβολή | ||
| 43287 | Π.Ε. ΑΤΤΙΚΗΣ | ΑΘΗΝΑ | - | 141 / 2009 | 10526 | ΠΡΩΤΟΤΥΠΟ | ΚΑΤΟΨΗ ΣΤΕΓΩΝ | Προβολή | ||
| 43401 | Π.Ε. ΑΤΤΙΚΗΣ | ΑΘΗΝΑ | - | 150 / 2008 | 12720 | ΠΡΩΤΟΤΥΠΟ | 01 | Προβολή | ||
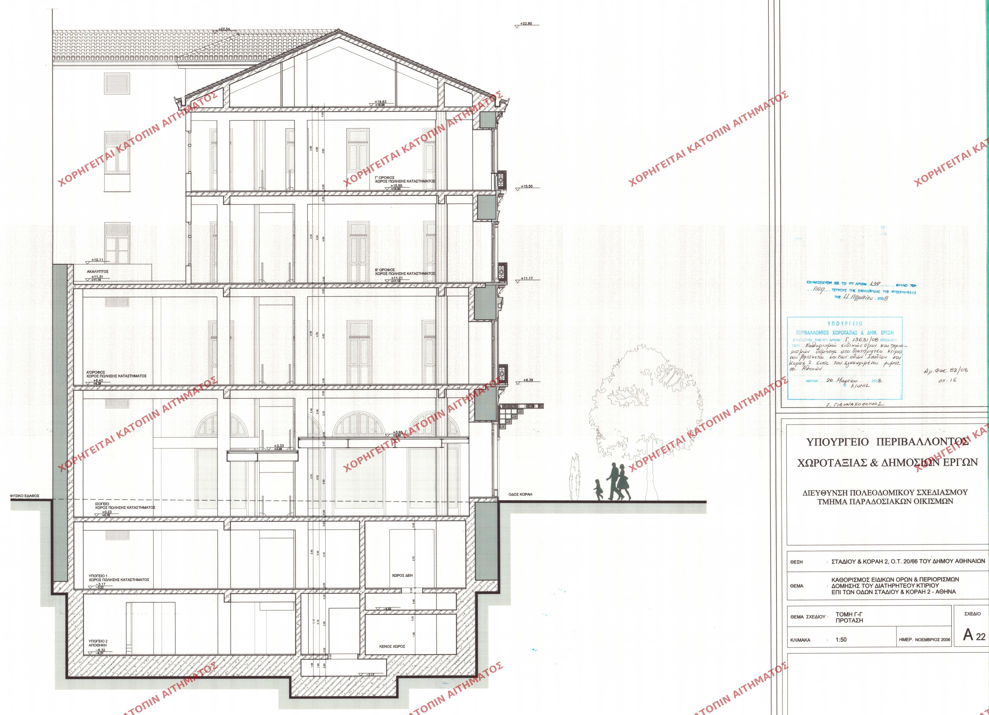
| 43400 | Π.Ε. ΑΤΤΙΚΗΣ | ΑΘΗΝΑ | - | 139 / 2008 | 13631 | ΠΡΩΤΟΤΥΠΟ | ΤΟΜΗ Γ-Γ | Προβολή | ||
| 43399 | Π.Ε. ΑΤΤΙΚΗΣ | ΑΘΗΝΑ | - | 178 / 2008 | 18870 | ΠΡΩΤΟΤΥΠΟ | 16.01 | Προβολή | ||
| 43398 | Π.Ε. ΑΤΤΙΚΗΣ | ΑΘΗΝΑ | - | 215 / 2008 | 20340 | ΠΡΩΤΟΤΥΠΟ | 16.00 | Προβολή | ||
| 43289 | Π.Ε. ΑΤΤΙΚΗΣ | ΑΘΗΝΑ | - | 141 / 2009 | 10526 | ΠΡΩΤΟΤΥΠΟ | ΚΑΤΟΨΗ Α ΟΡΟΦΟΥ | Προβολή | ||
| 43285 | Π.Ε. ΑΤΤΙΚΗΣ | ΑΘΗΝΑ | - | 141 / 2009 | 10526 | ΠΡΩΤΟΤΥΠΟ | ΚΑΤΟΨΗ ΙΣΟΓΕΙΟΥ Α | Προβολή | ||
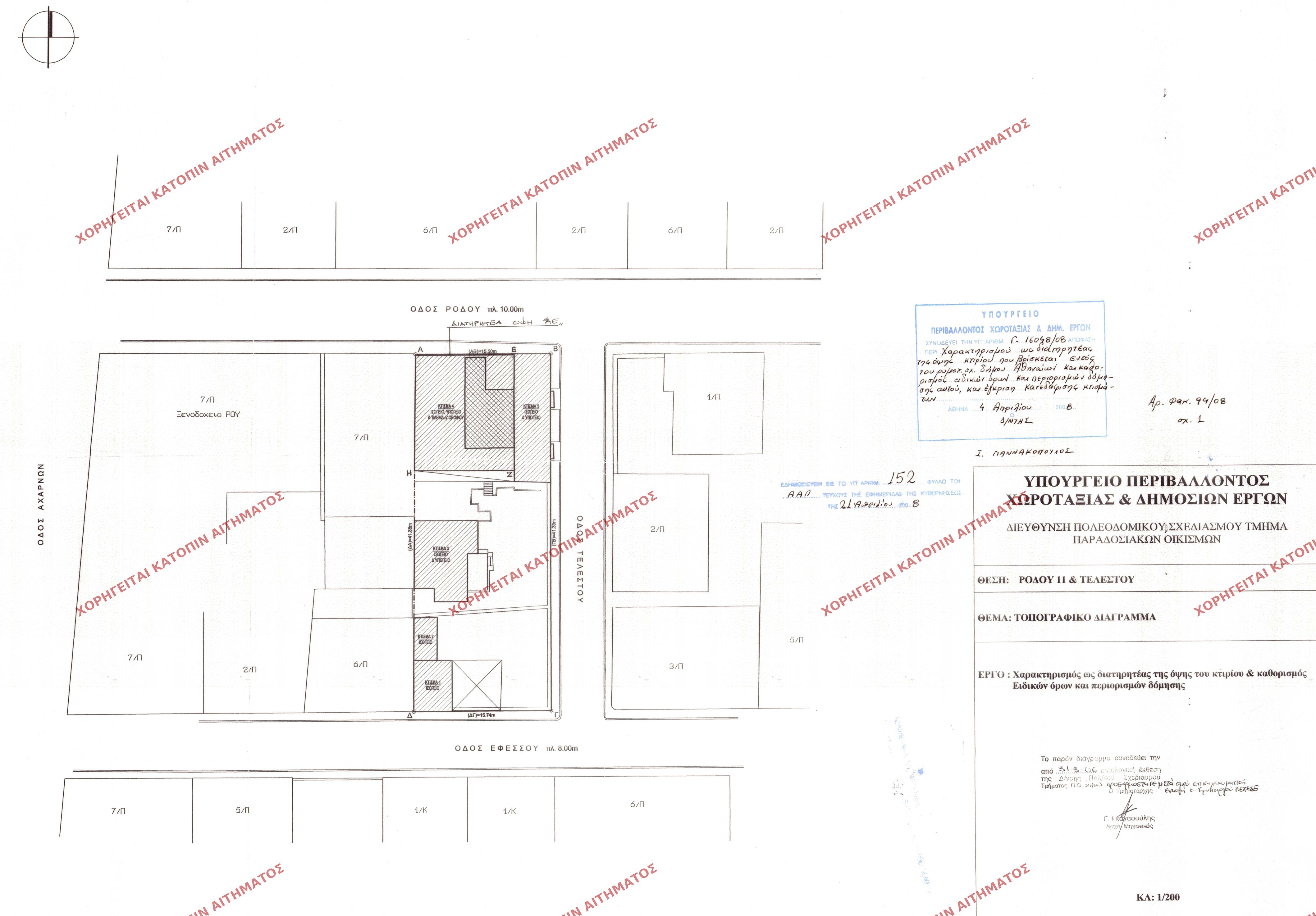
| 43397 | Π.Ε. ΑΤΤΙΚΗΣ | ΑΘΗΝΑ | - | 152 / 2008 | 16048 | ΠΡΩΤΟΤΥΠΟ | 01 | Προβολή | ||
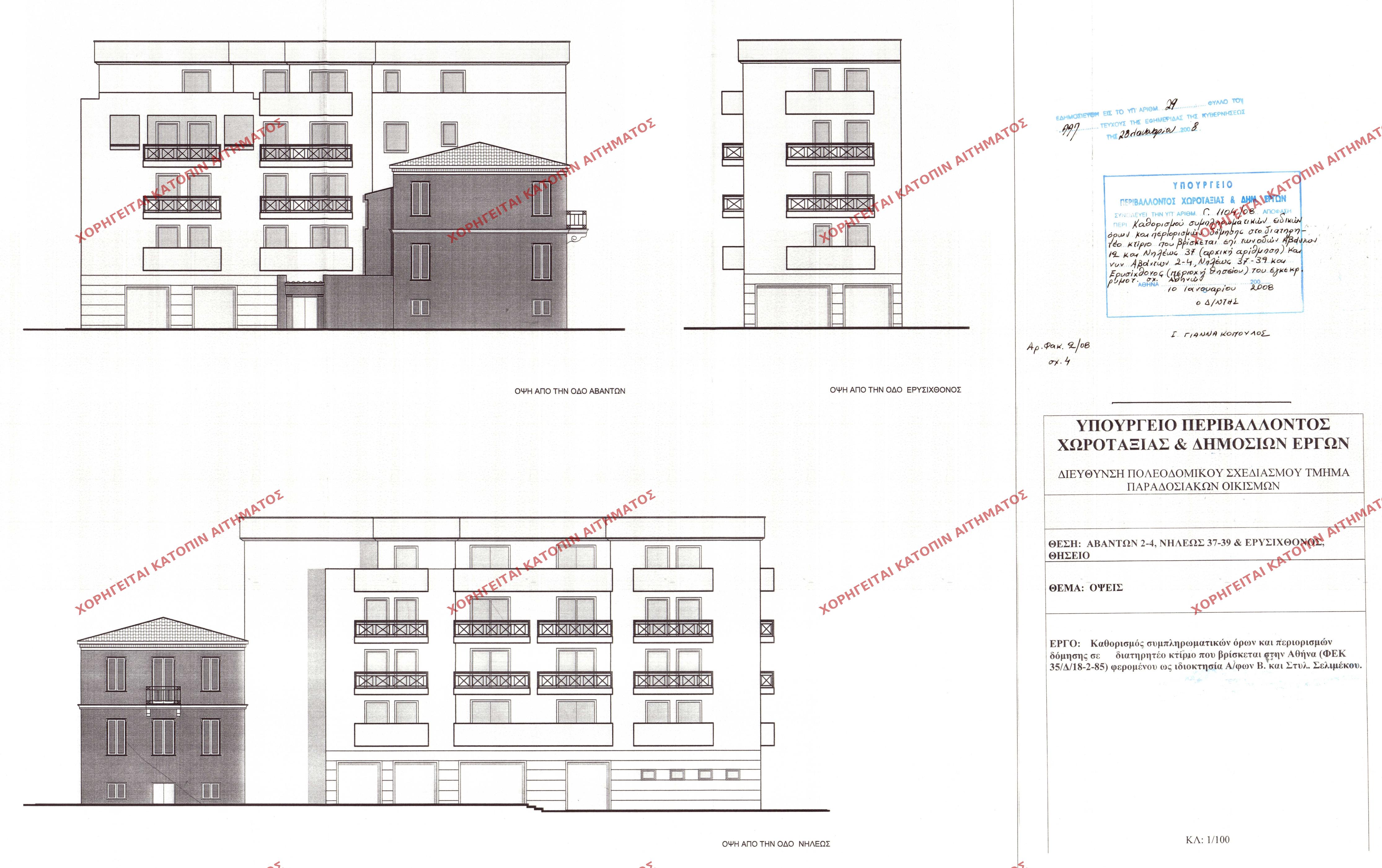
| 43396 | Π.Ε. ΑΤΤΙΚΗΣ | ΑΘΗΝΑ | - | 29 / 2008 | 1104 | ΠΡΩΤΟΤΥΠΟ | ΟΨΕΙΣ | Προβολή | ||
| 43291 | Π.Ε. ΑΤΤΙΚΗΣ | ΑΘΗΝΑ | - | 236 / 2010 | 19230 | ΔΗΜΟΣΙΕΥΜΕΝΟ ΣΕ ΦΕΚ | 17.17 | Προβολή | ||
| 43292 | Π.Ε. ΑΤΤΙΚΗΣ | ΑΘΗΝΑ | - | 172 / 2009 | 13450 | ΠΡΩΤΟΤΥΠΟ | 01 | Προβολή | ||
| 43293 | Π.Ε. ΑΤΤΙΚΗΣ | ΑΘΗΝΑ | - | 154 / 2009 | 2464 | ΠΡΩΤΟΤΥΠΟ | 01 | Προβολή |