| Κωδ. Διαγρ. | Περιφερειακή Ενότητα | Δήμος κατά ΦΕΚ / Κοινότητα | Θέση | Αριθμός και Έτος ΦΕΚ | Αριθμός Πράξης | Τύπος Διαγράμματος | Πινακίδα | Ενέργειες | ||
|---|---|---|---|---|---|---|---|---|---|---|
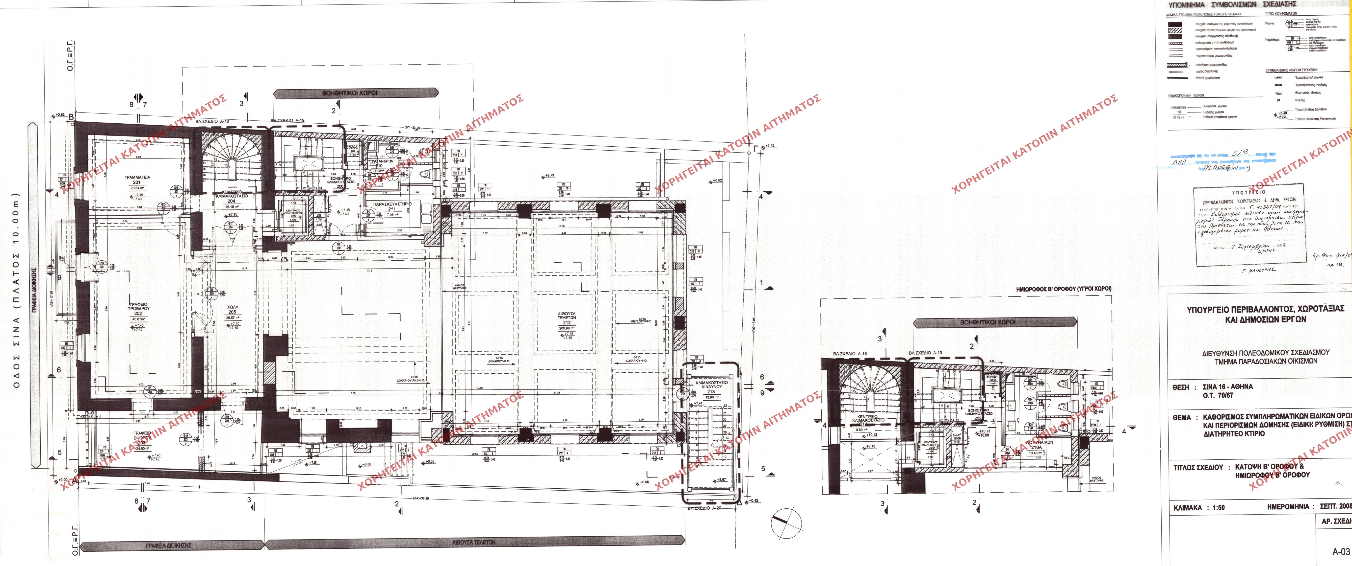
| 43087 | Π.Ε. ΑΤΤΙΚΗΣ | ΑΘΗΝΑ | - | 518 / 2009 | 40347 | ΠΡΩΤΟΤΥΠΟ | ΚΑΤΟΨΗ Β ΟΡΟΦΟΥ | Προβολή | ||
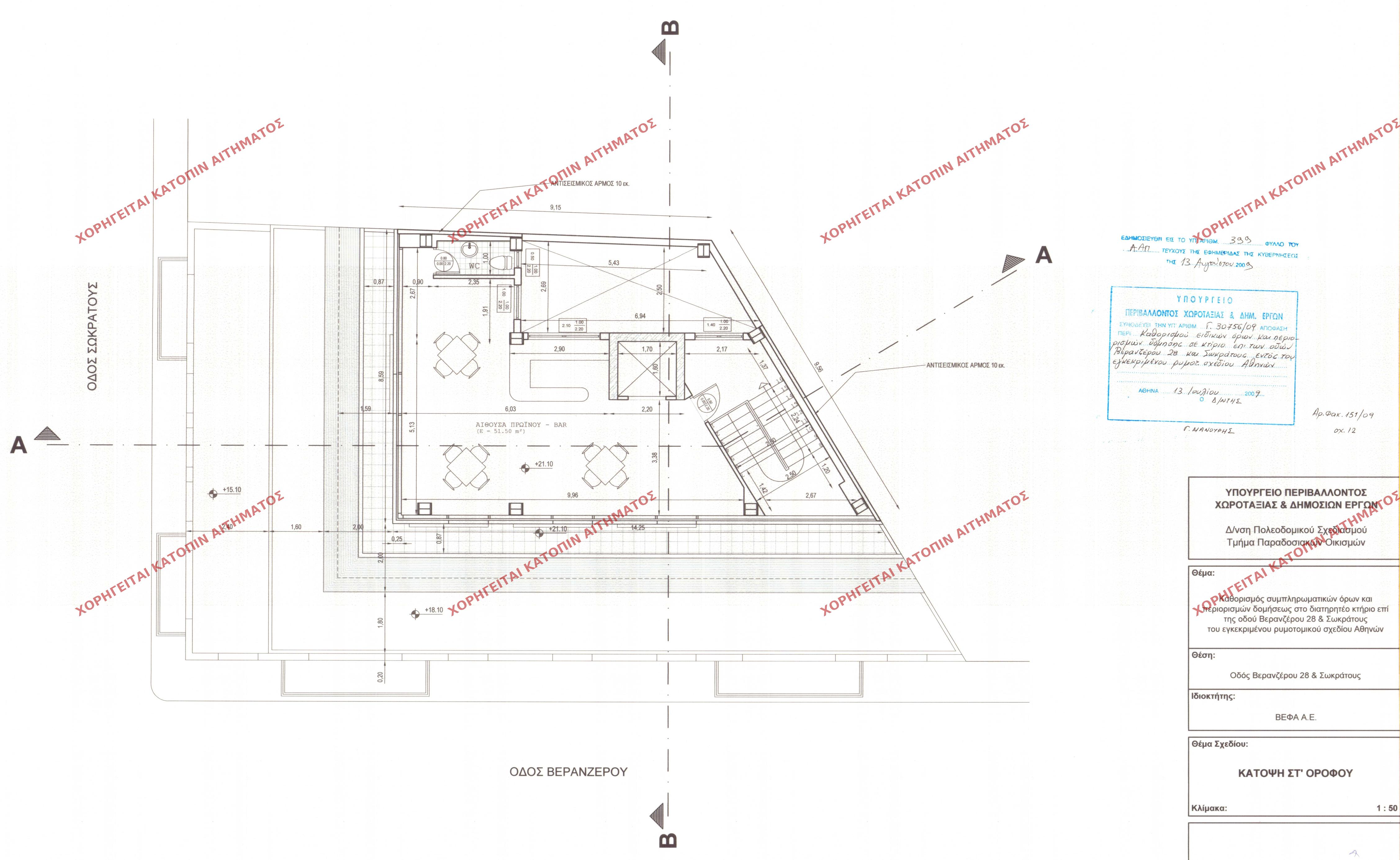
| 43096 | Π.Ε. ΑΤΤΙΚΗΣ | ΑΘΗΝΑ | - | 399 / 2009 | 30756 | ΠΡΩΤΟΤΥΠΟ | ΚΑΤΟΨΗ ΣΤ ΟΡΟΦΟΥ | Προβολή | ||
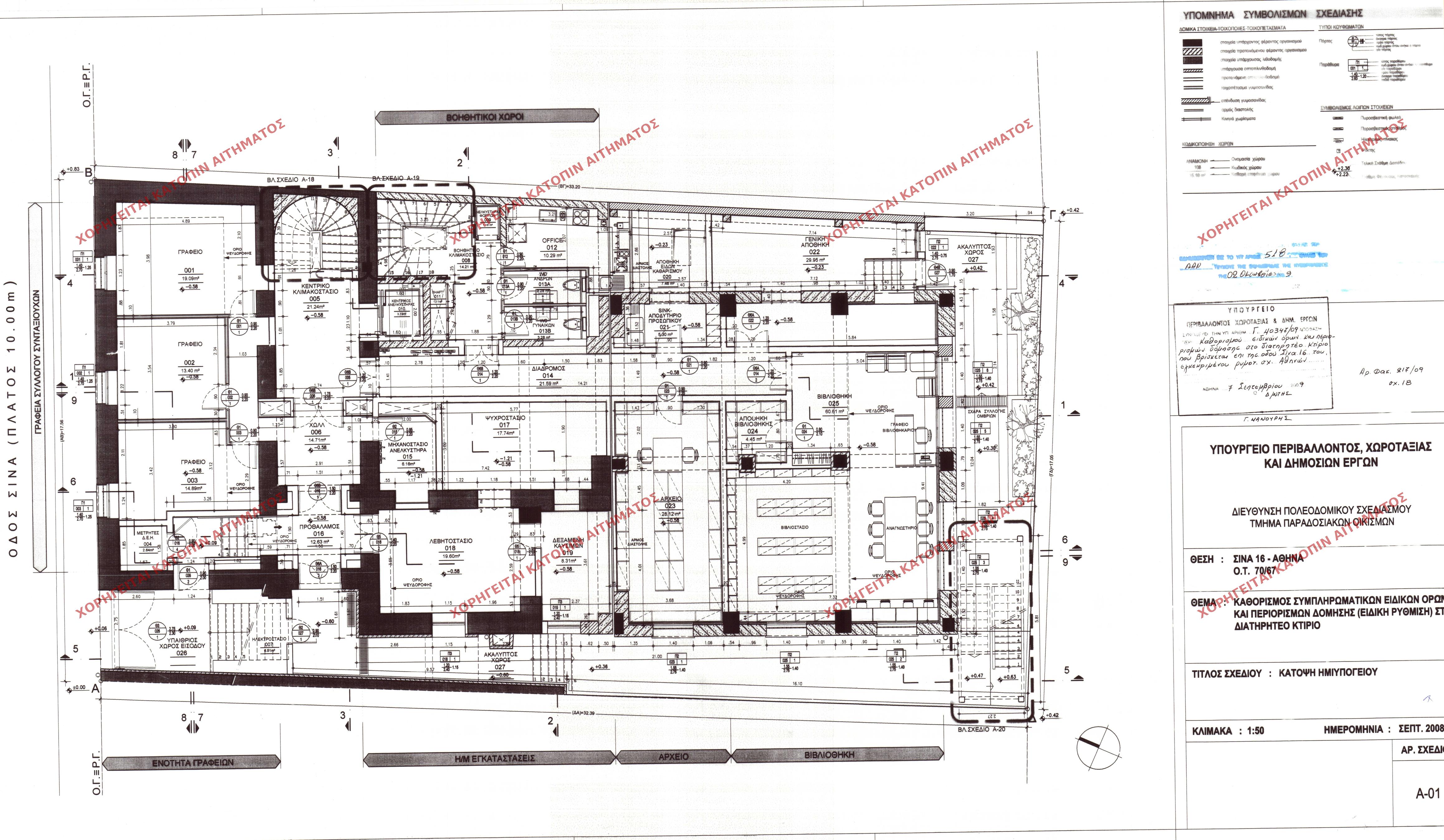
| 43085 | Π.Ε. ΑΤΤΙΚΗΣ | ΑΘΗΝΑ | - | 518 / 2009 | 40347 | ΠΡΩΤΟΤΥΠΟ | ΚΑΤΟΨΗ ΗΜΙΥΠΟΓΕΙΟΥ | Προβολή | ||
| 43084 | Π.Ε. ΑΤΤΙΚΗΣ | ΑΘΗΝΑ | - | 518 / 2009 | 40347 | ΠΡΩΤΟΤΥΠΟ | ΚΑΤΟΨΗ Α ΟΡΟΦΟΥ & ΗΜΙΟΡΟΦΟΥ Α ΟΡΟΦΟΥ | Προβολή | ||
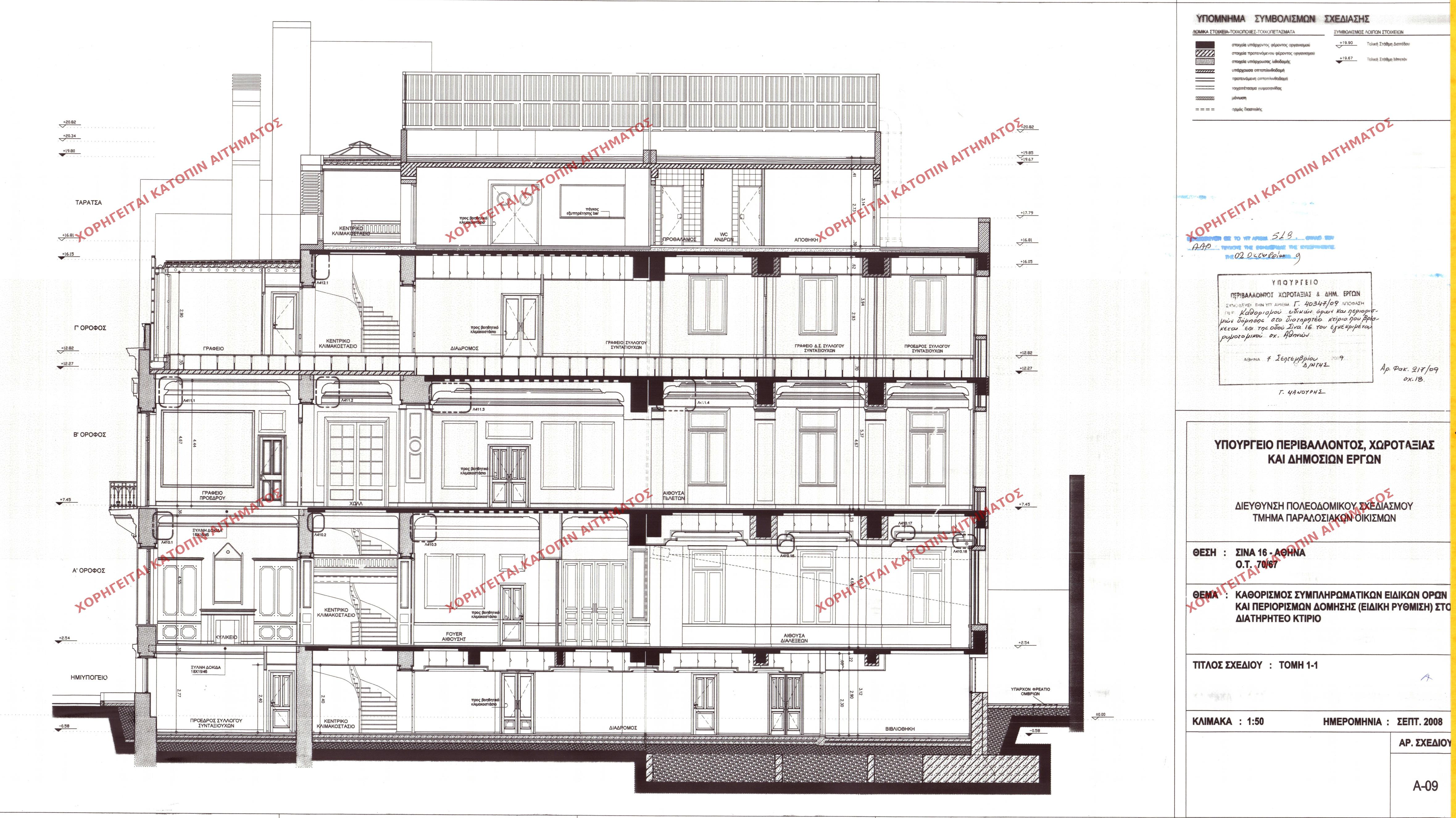
| 43083 | Π.Ε. ΑΤΤΙΚΗΣ | ΑΘΗΝΑ | - | 518 / 2009 | 40347 | ΠΡΩΤΟΤΥΠΟ | ΤΟΜΗ 1-1 | Προβολή | ||
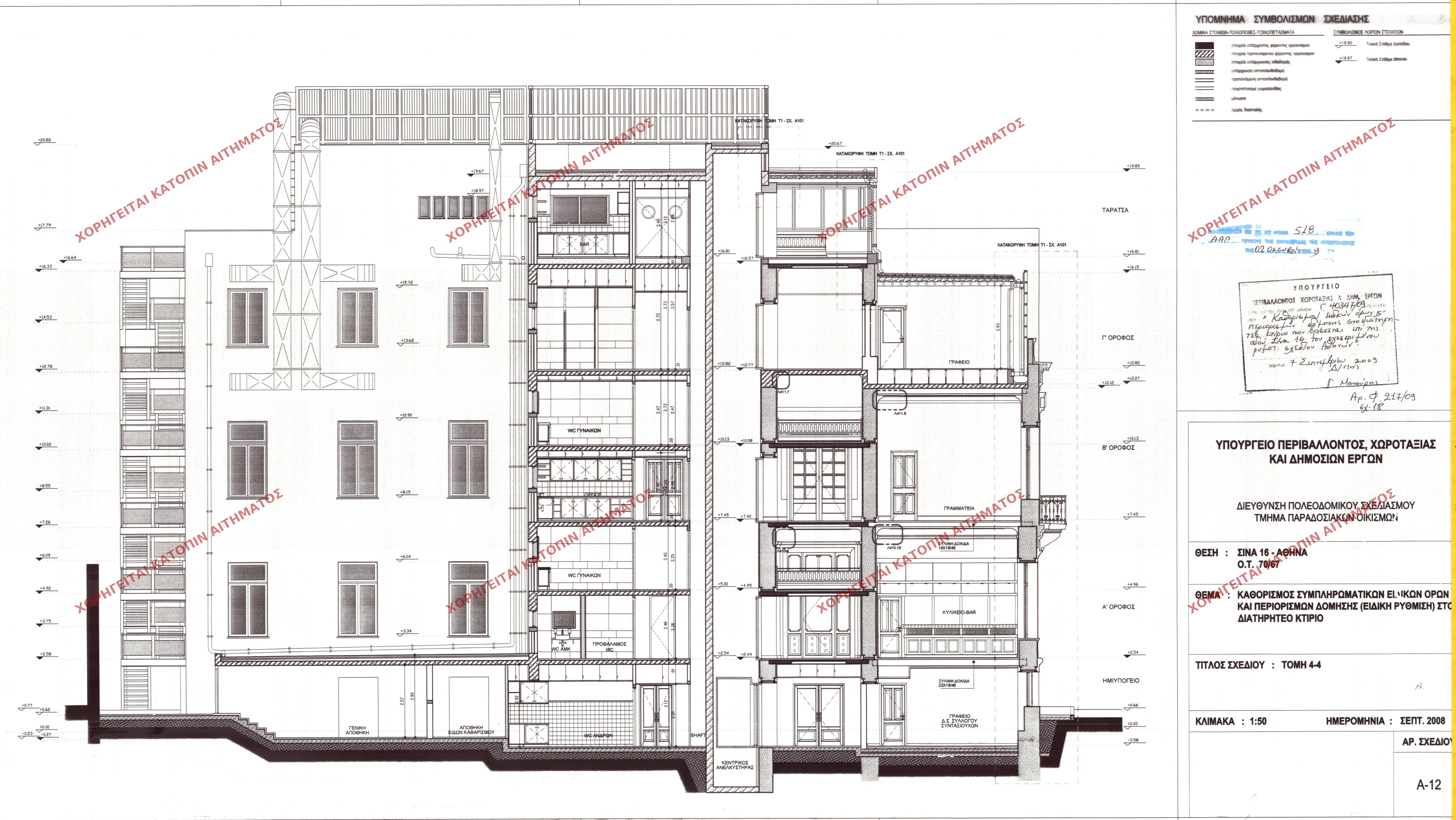
| 43082 | Π.Ε. ΑΤΤΙΚΗΣ | ΑΘΗΝΑ | - | 518 / 2009 | 40347 | ΠΡΩΤΟΤΥΠΟ | ΤΟΜΗ 4-4 | Προβολή | ||
| 43081 | Π.Ε. ΑΤΤΙΚΗΣ | ΑΘΗΝΑ | - | 104 / 2010 | 5853 | ΠΡΩΤΟΤΥΠΟ | ΤΟΜΗ Α-Α | Προβολή | ||
| 43080 | Π.Ε. ΑΤΤΙΚΗΣ | ΑΘΗΝΑ | ΟΔΟΣ ΛΑΖΑΙΩΝ Ο.Τ. 88 ΤΟΜΕΑΣ 55 | 34 / 2010 | 2000 | ΔΗΜΟΣΙΕΥΜΕΝΟ ΣΕ ΦΕΚ | ΤΟΠΟΓΡΑΦΙΚΟ ΔΙΑΓΡΑΜΜΑ | Προβολή | ||
| 43079 | Π.Ε. ΑΤΤΙΚΗΣ | ΑΘΗΝΑ | - | 173 / 2000 | 6838 | ΔΗΜΟΣΙΕΥΜΕΝΟ ΣΕ ΦΕΚ | 01 | Προβολή | ||
| 43078 | Π.Ε. ΑΤΤΙΚΗΣ | ΑΘΗΝΑ | - | 173 / 2000 | 6838 | ΔΗΜΟΣΙΕΥΜΕΝΟ ΣΕ ΦΕΚ | ΠΡΟΤΑΣΗ ΟΨΕΙΣ | Προβολή | ||
| 42941 | Π.Ε. ΑΤΤΙΚΗΣ | ΑΘΗΝΑ | - | 67 / 2004 | 361 | ΠΡΩΤΟΤΥΠΟ | ΤΟΜΗ Δ-Δ | Προβολή | ||
| 43105 | Π.Ε. ΑΤΤΙΚΗΣ | ΑΘΗΝΑ | - | 399 / 2009 | 30756 | ΠΡΩΤΟΤΥΠΟ | ΔΙΑΓΡΑΜΜΑ ΚΑΛΥΨΗΣ | Προβολή | ||
| 43114 | Π.Ε. ΑΤΤΙΚΗΣ | ΑΘΗΝΑ | - | 104 / 2010 | 5853 | ΠΡΩΤΟΤΥΠΟ | ΚΑΤΟΨΗ ΥΠΟΓΕΙΟΥ | Προβολή | ||
| 43113 | Π.Ε. ΑΤΤΙΚΗΣ | ΑΘΗΝΑ | - | 333 / 2009 | 26525 | ΠΡΩΤΟΤΥΠΟ | ΤΟΜΗ Β-Β | Προβολή | ||
| 43112 | Π.Ε. ΑΤΤΙΚΗΣ | ΑΘΗΝΑ | - | 333 / 2009 | 26525 | ΠΡΩΤΟΤΥΠΟ | ΚΑΤΟΨΗ ΜΕΣΟΠΑΤΩΜΑΤΟΣ | Προβολή | ||
| 43111 | Π.Ε. ΑΤΤΙΚΗΣ | ΑΘΗΝΑ | - | 333 / 2009 | 26525 | ΠΡΩΤΟΤΥΠΟ | ΚΑΤΟΨΗ 1ου ΟΡΟΦΟΥ | Προβολή | ||
| 43110 | Π.Ε. ΑΤΤΙΚΗΣ | ΑΘΗΝΑ | - | 333 / 2009 | 26525 | ΠΡΩΤΟΤΥΠΟ | ΚΑΤΟΨΗ 2ου ΟΡΟΦΟΥ | Προβολή | ||
| 43109 | Π.Ε. ΑΤΤΙΚΗΣ | ΑΘΗΝΑ | - | 333 / 2009 | 26525 | ΠΡΩΤΟΤΥΠΟ | ΟΨΗ ΑΠΟ ΟΔΟ ΕΡΜΟΥ | Προβολή | ||
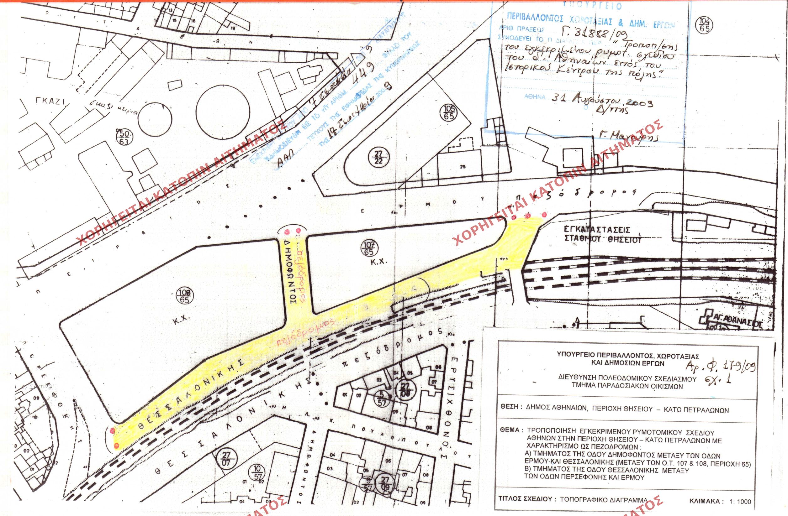
| 43108 | Π.Ε. ΑΤΤΙΚΗΣ | ΑΘΗΝΑ | - | 449 / 2009 | 31888 | ΔΗΜΟΣΙΕΥΜΕΝΟ ΣΕ ΦΕΚ | 01 | Προβολή | ||
| 43107 | Π.Ε. ΑΤΤΙΚΗΣ | ΑΘΗΝΑ | - | 408 / 2009 | 30382 | ΠΡΩΤΟΤΥΠΟ | 01 | Προβολή |