| Κωδ. Διαγρ. | Περιφερειακή Ενότητα | Δήμος κατά ΦΕΚ / Κοινότητα | Θέση | Αριθμός και Έτος ΦΕΚ | Αριθμός Πράξης | Τύπος Διαγράμματος | Πινακίδα | Ενέργειες | ||
|---|---|---|---|---|---|---|---|---|---|---|
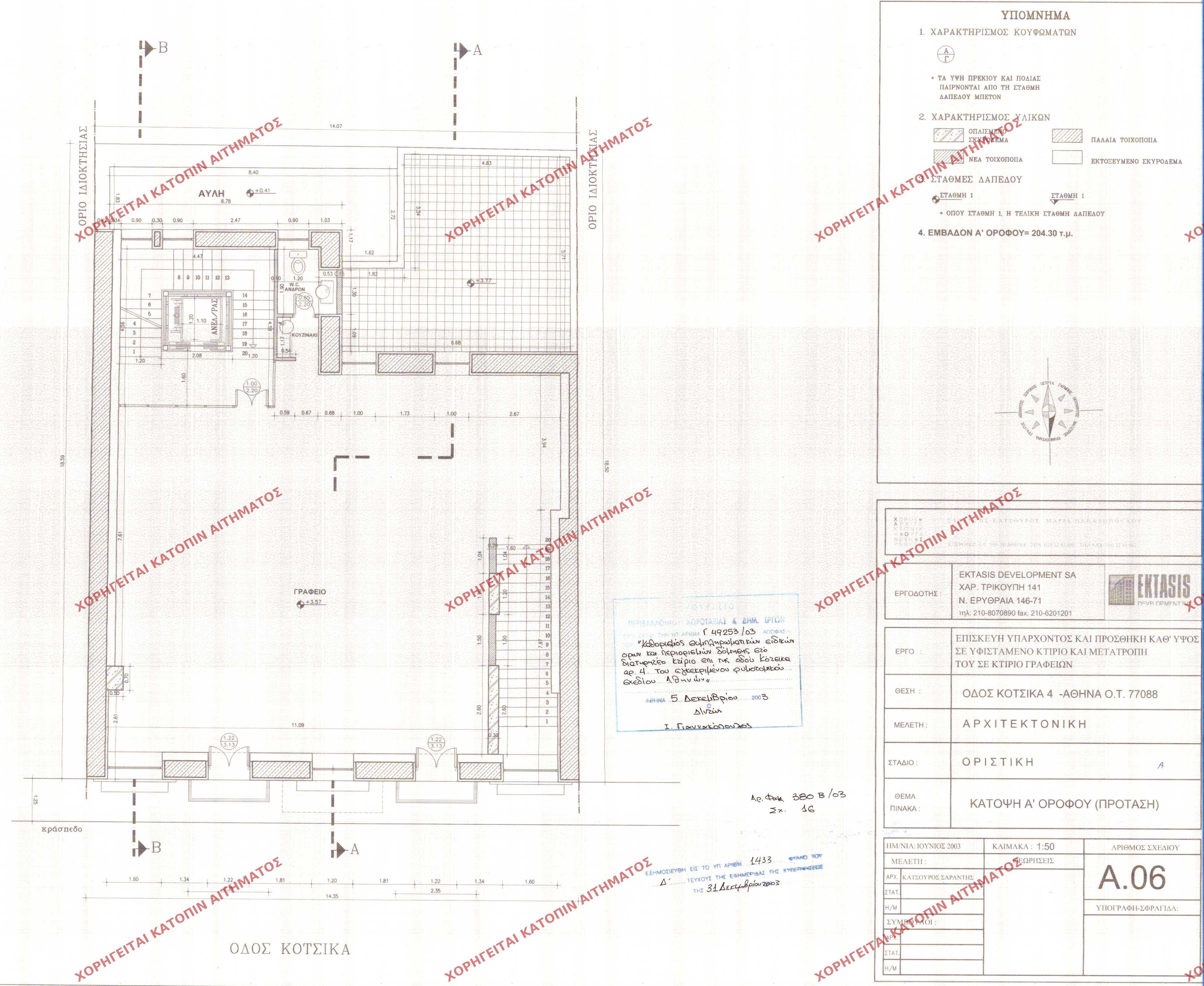
| 43010 | Π.Ε. ΑΤΤΙΚΗΣ | ΑΘΗΝΑ | - | 1433 / 2003 | 49253 | ΠΡΩΤΟΤΥΠΟ | ΚΑΤΟΨΗ ΔΩΜΑΤΟΣ | Προβολή | ||
| 43009 | Π.Ε. ΑΤΤΙΚΗΣ | ΑΘΗΝΑ | - | 845 / 1999 | 20979 | ΠΡΩΤΟΤΥΠΟ | ΚΑΤΟΨΗ ΟΡΟΦΟΥ Β | Προβολή | ||
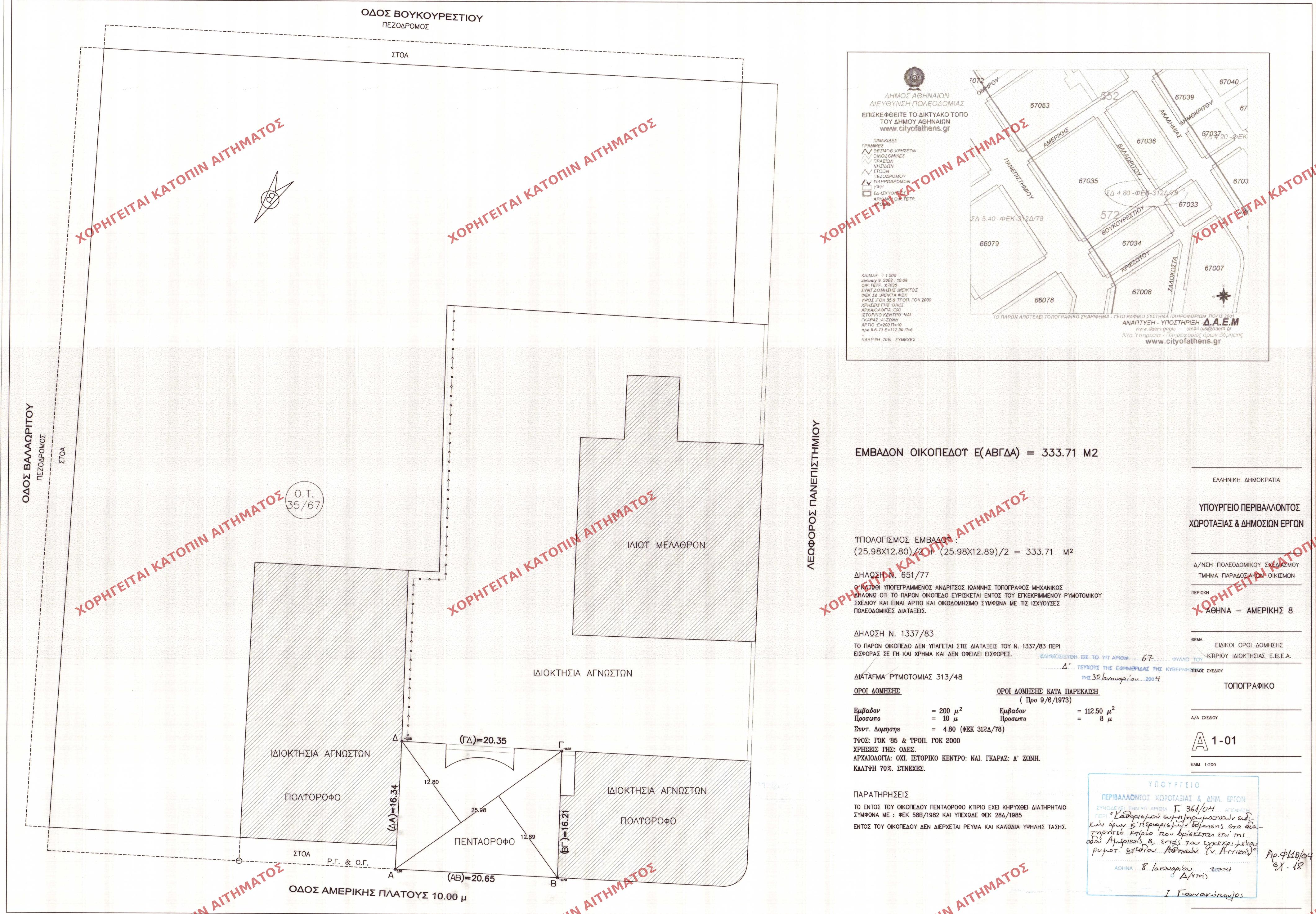
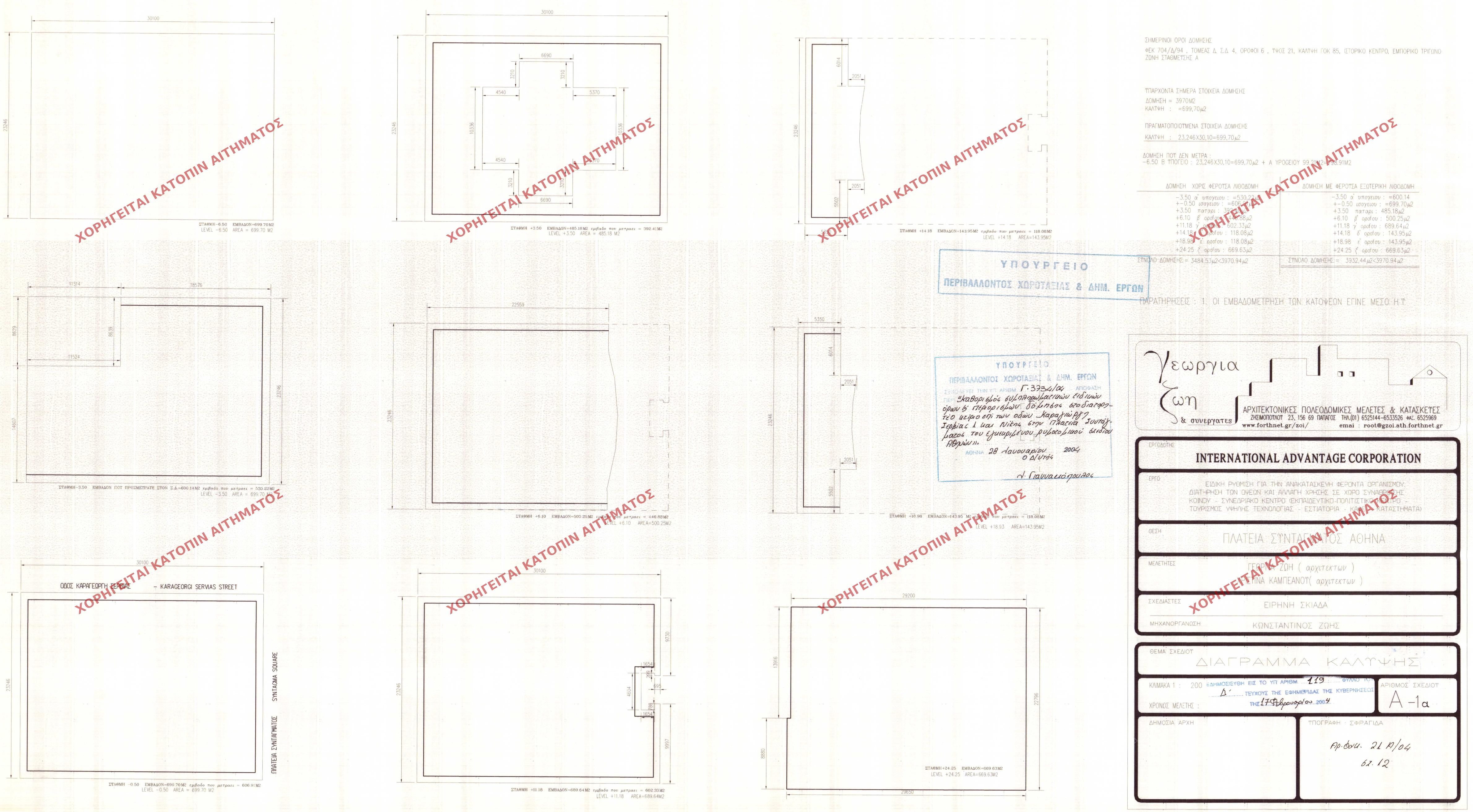
| 42978 | Π.Ε. ΑΤΤΙΚΗΣ | ΑΘΗΝΑ | - | 119 / 2004 | 3734 | ΠΡΩΤΟΤΥΠΟ | ΔΙΑΓΡΑΜΜΑ ΚΑΛΥΨΗΣ | Προβολή | ||
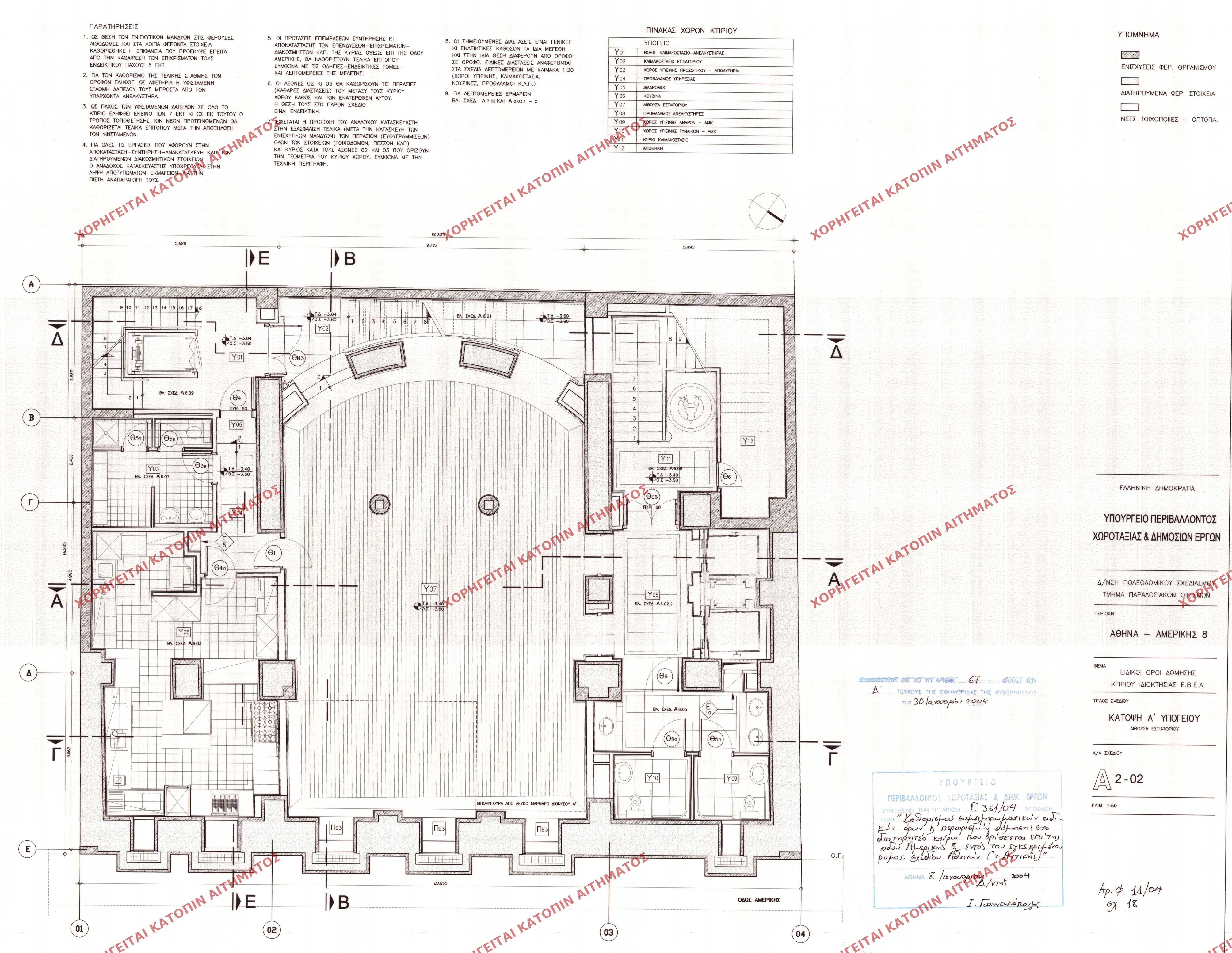
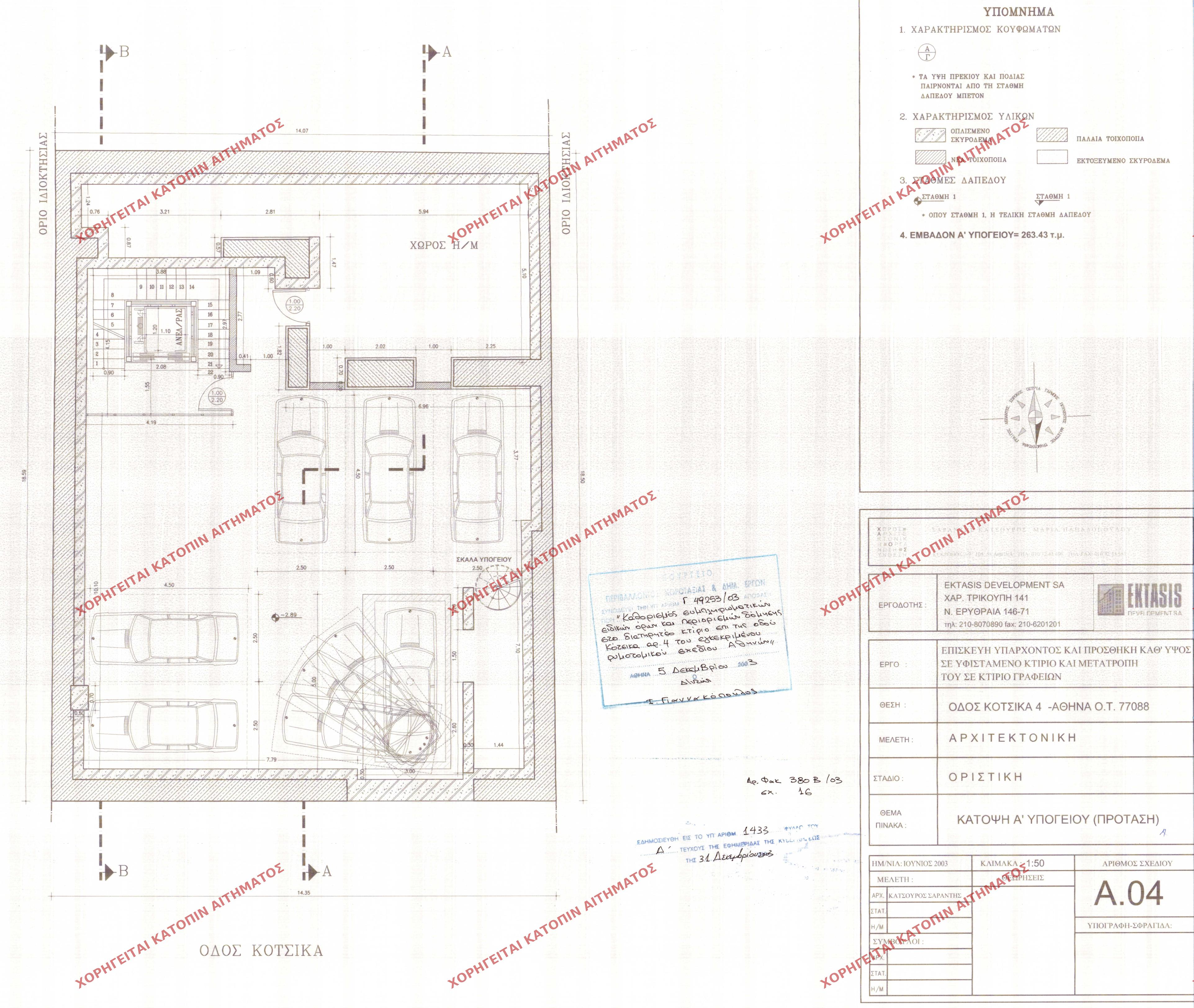
| 43007 | Π.Ε. ΑΤΤΙΚΗΣ | ΑΘΗΝΑ | - | 1433 / 2003 | 49253 | ΠΡΩΤΟΤΥΠΟ | ΚΑΤΟΨΗ Α ΥΠΟΓΕΙΟΥ | Προβολή | ||
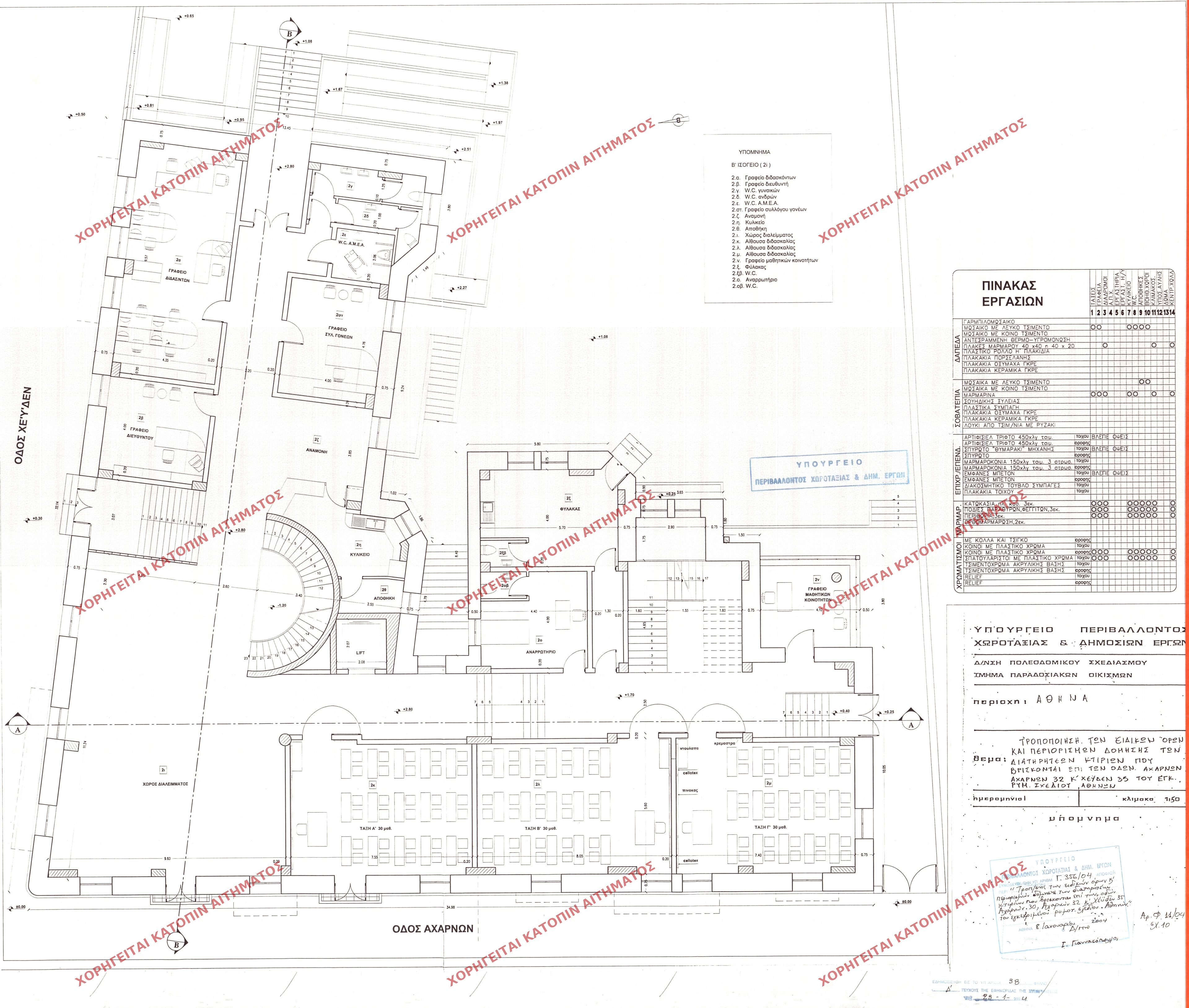
| 43006 | Π.Ε. ΑΤΤΙΚΗΣ | ΑΘΗΝΑ | - | 38 / 2004 | 356 | ΠΡΩΤΟΤΥΠΟ | 01 | Προβολή | ||
| 43005 | Π.Ε. ΑΤΤΙΚΗΣ | ΑΘΗΝΑ | - | 1433 / 2003 | 49253 | ΠΡΩΤΟΤΥΠΟ | Α-11 | Προβολή | ||
| 43004 | Π.Ε. ΑΤΤΙΚΗΣ | ΑΘΗΝΑ | - | 1433 / 2003 | 49253 | ΔΗΜΟΣΙΕΥΜΕΝΟ ΣΕ ΦΕΚ | ΚΑΤΟΨΗ Β ΥΠΟΓΕΙΟΥ | Προβολή | ||
| 43003 | Π.Ε. ΑΤΤΙΚΗΣ | ΑΘΗΝΑ | - | 1433 / 2003 | 49253 | ΠΡΩΤΟΤΥΠΟ | ΚΑΤΟΨΗ Α ΟΡΟΦΟΥ | Προβολή | ||
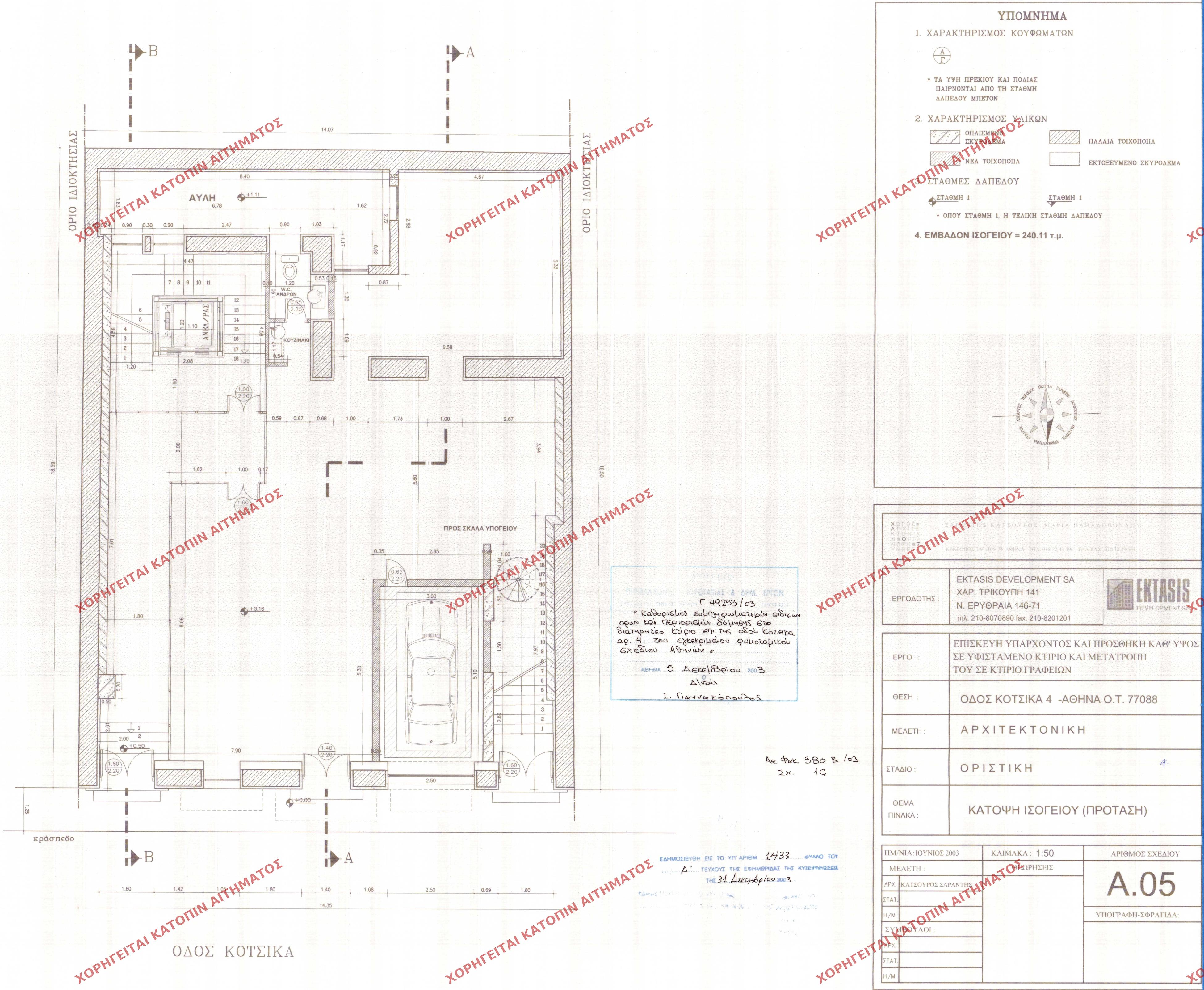
| 43002 | Π.Ε. ΑΤΤΙΚΗΣ | ΑΘΗΝΑ | - | 1433 / 2003 | 49253 | ΠΡΩΤΟΤΥΠΟ | ΚΑΤΟΨΗ ΙΣΟΓΕΙΟΥ | Προβολή | ||
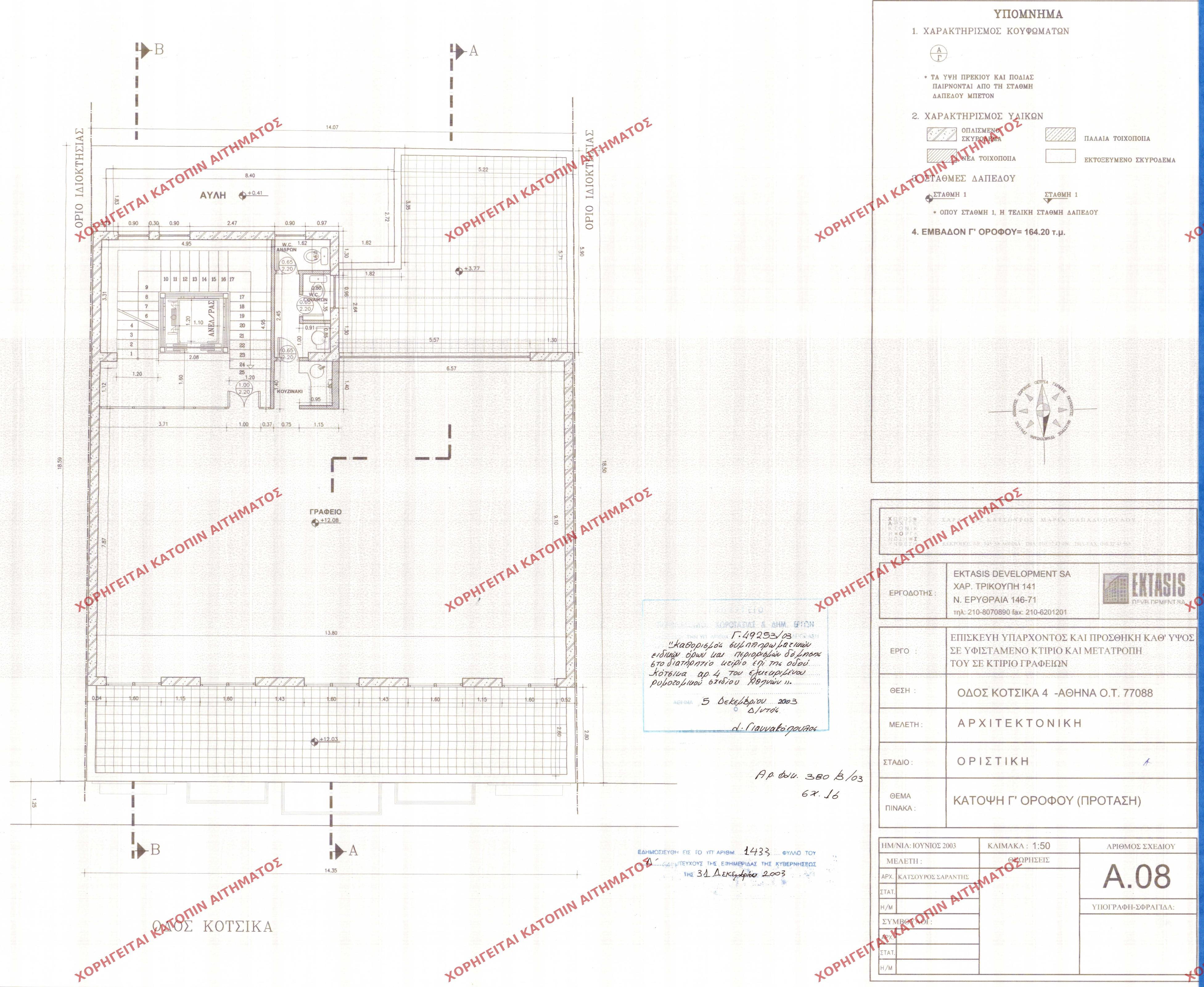
| 43001 | Π.Ε. ΑΤΤΙΚΗΣ | ΑΘΗΝΑ | - | 1433 / 2003 | 49253 | ΠΡΩΤΟΤΥΠΟ | ΚΑΤΟΨΗ Γ ΟΡΟΦΟΥ | Προβολή | ||
| 43000 | Π.Ε. ΑΤΤΙΚΗΣ | ΑΘΗΝΑ | - | 1433 / 2003 | 49253 | ΠΡΩΤΟΤΥΠΟ | ΚΑΤΟΨΗ Δ ΟΡΟΦΟΥ | Προβολή | ||
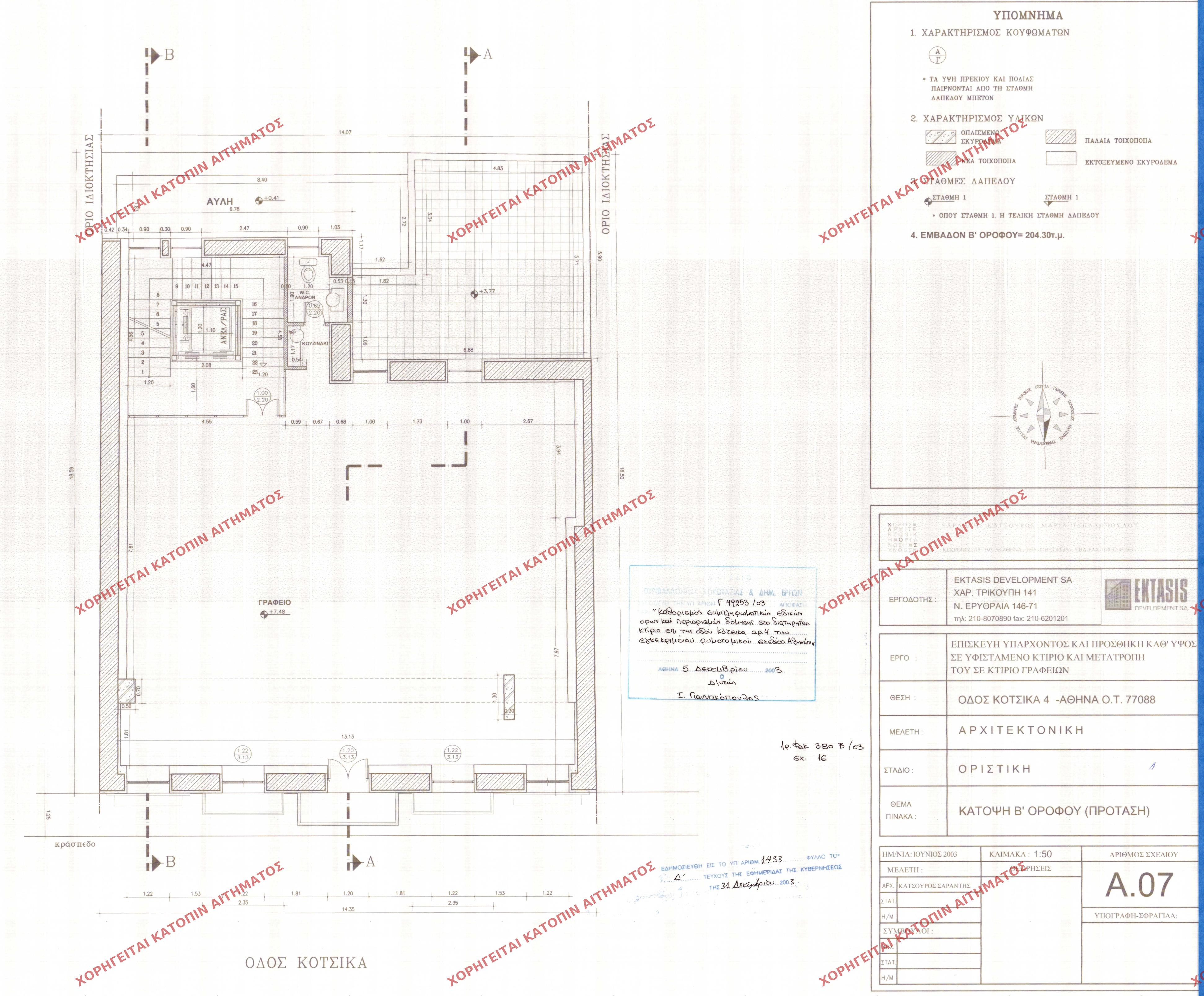
| 42999 | Π.Ε. ΑΤΤΙΚΗΣ | ΑΘΗΝΑ | - | 1433 / 2003 | 49253 | ΠΡΩΤΟΤΥΠΟ | ΚΑΤΟΨΗ Β ΟΡΟΦΟΥ | Προβολή | ||
| 42949 | Π.Ε. ΑΤΤΙΚΗΣ | ΑΘΗΝΑ | - | 67 / 2004 | 361 | ΠΡΩΤΟΤΥΠΟ | ΟΨΗ ΣΤΟΝ ΑΚΑΛΥΠΤΟ | Προβολή | ||
| 42958 | Π.Ε. ΑΤΤΙΚΗΣ | ΑΘΗΝΑ | - | 67 / 2004 | 361 | ΠΡΩΤΟΤΥΠΟ | ΤΟΜΗ Α-Α | Προβολή | ||
| 42957 | Π.Ε. ΑΤΤΙΚΗΣ | ΑΘΗΝΑ | - | 38 / 2004 | 356 | ΔΗΜΟΣΙΕΥΜΕΝΟ ΣΕ ΦΕΚ | 01 | Προβολή | ||
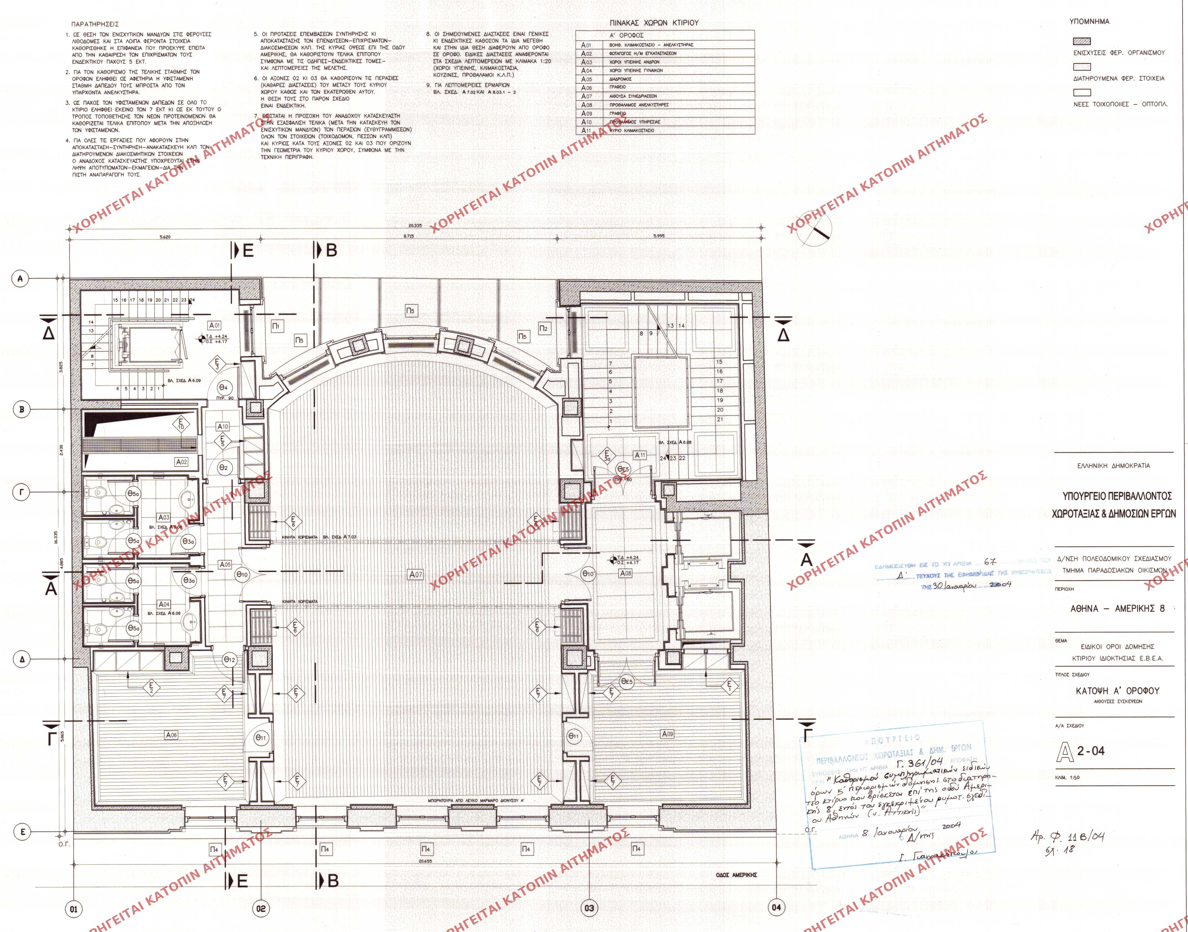
| 42956 | Π.Ε. ΑΤΤΙΚΗΣ | ΑΘΗΝΑ | - | 67 / 2004 | 361 | ΠΡΩΤΟΤΥΠΟ | ΚΑΤΟΨΗ Α ΟΡΟΦΟΥ | Προβολή | ||
| 42955 | Π.Ε. ΑΤΤΙΚΗΣ | ΑΘΗΝΑ | - | 67 / 2004 | 361 | ΔΗΜΟΣΙΕΥΜΕΝΟ ΣΕ ΦΕΚ | 01 | Προβολή | ||
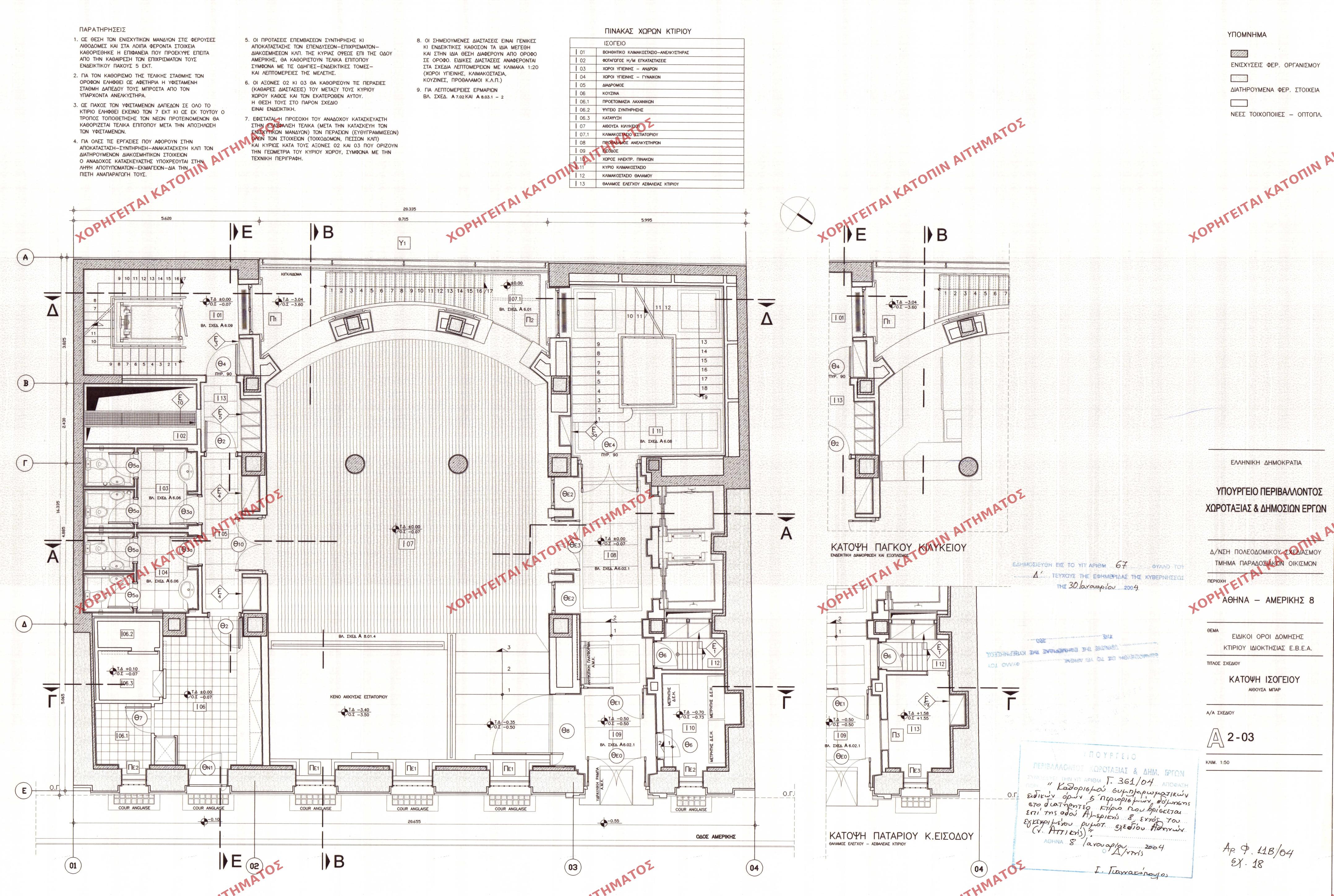
| 42954 | Π.Ε. ΑΤΤΙΚΗΣ | ΑΘΗΝΑ | - | 67 / 2004 | 361 | ΠΡΩΤΟΤΥΠΟ | ΚΑΤΟΨΗ ΙΣΟΓΕΙΟΥ | Προβολή | ||
| 42953 | Π.Ε. ΑΤΤΙΚΗΣ | ΑΘΗΝΑ | - | 845 / 1999 | 20979 | ΠΡΩΤΟΤΥΠΟ | ΟΨΗ Ζ-Ζ Η-Η | Προβολή | ||
| 42952 | Π.Ε. ΑΤΤΙΚΗΣ | ΑΘΗΝΑ | - | 67 / 2004 | 361 | ΠΡΩΤΟΤΥΠΟ | ΚΑΤΟΨΗ Α ΥΠΟΓΕΙΟΥ | Προβολή |