| Κωδ. Διαγρ. | Περιφερειακή Ενότητα | Δήμος κατά ΦΕΚ / Κοινότητα | Θέση | Αριθμός και Έτος ΦΕΚ | Αριθμός Πράξης | Τύπος Διαγράμματος | Πινακίδα | Ενέργειες | ||
|---|---|---|---|---|---|---|---|---|---|---|
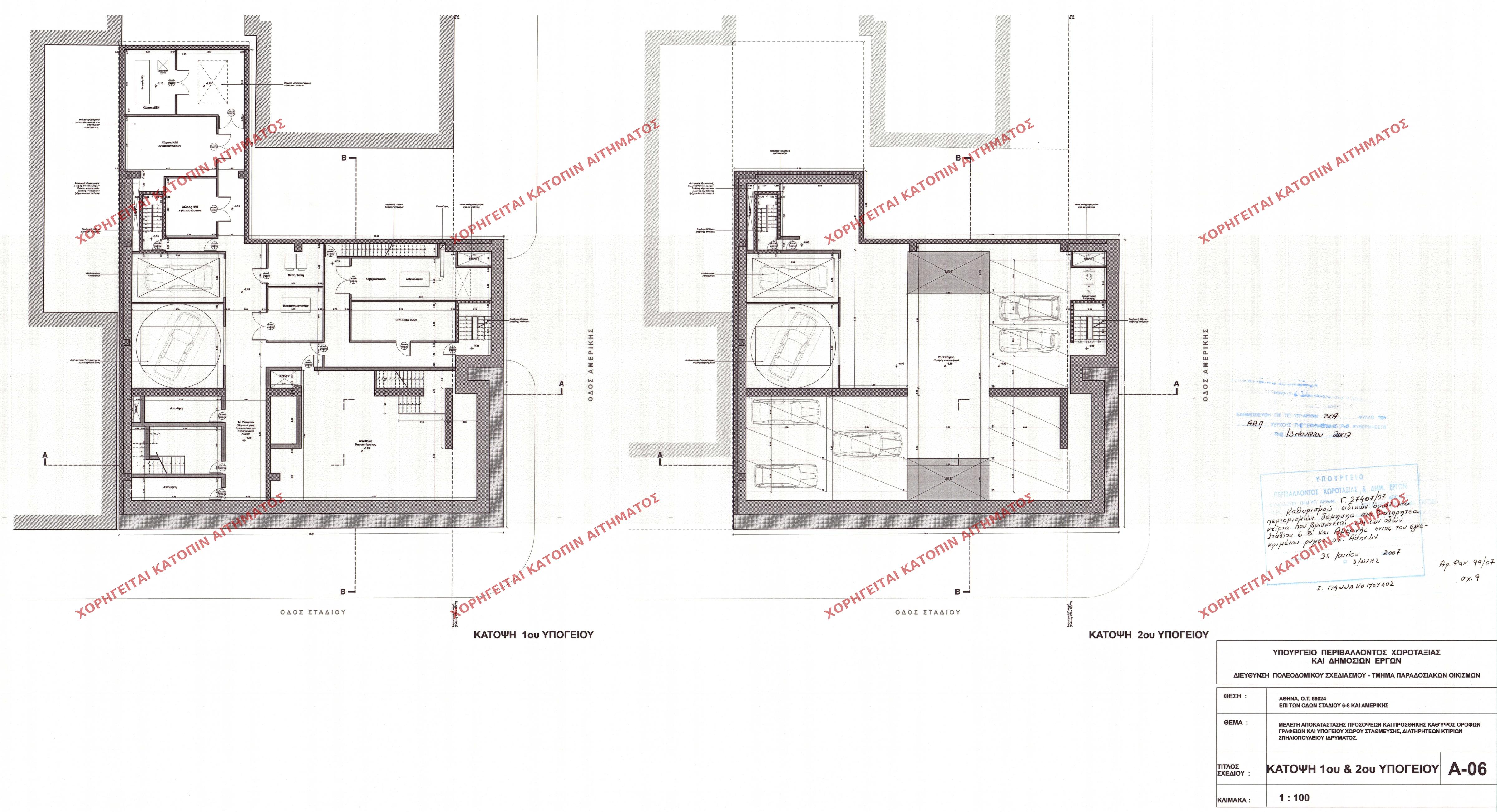
| 43942 | Π.Ε. ΑΤΤΙΚΗΣ | ΑΘΗΝΑ | - | 309 / 2007 | 27407 | ΠΡΩΤΟΤΥΠΟ | ΚΑΤΟΨΗ 1ου 2ου ΥΠΟΓΕΙΟΥ | Προβολή | ||
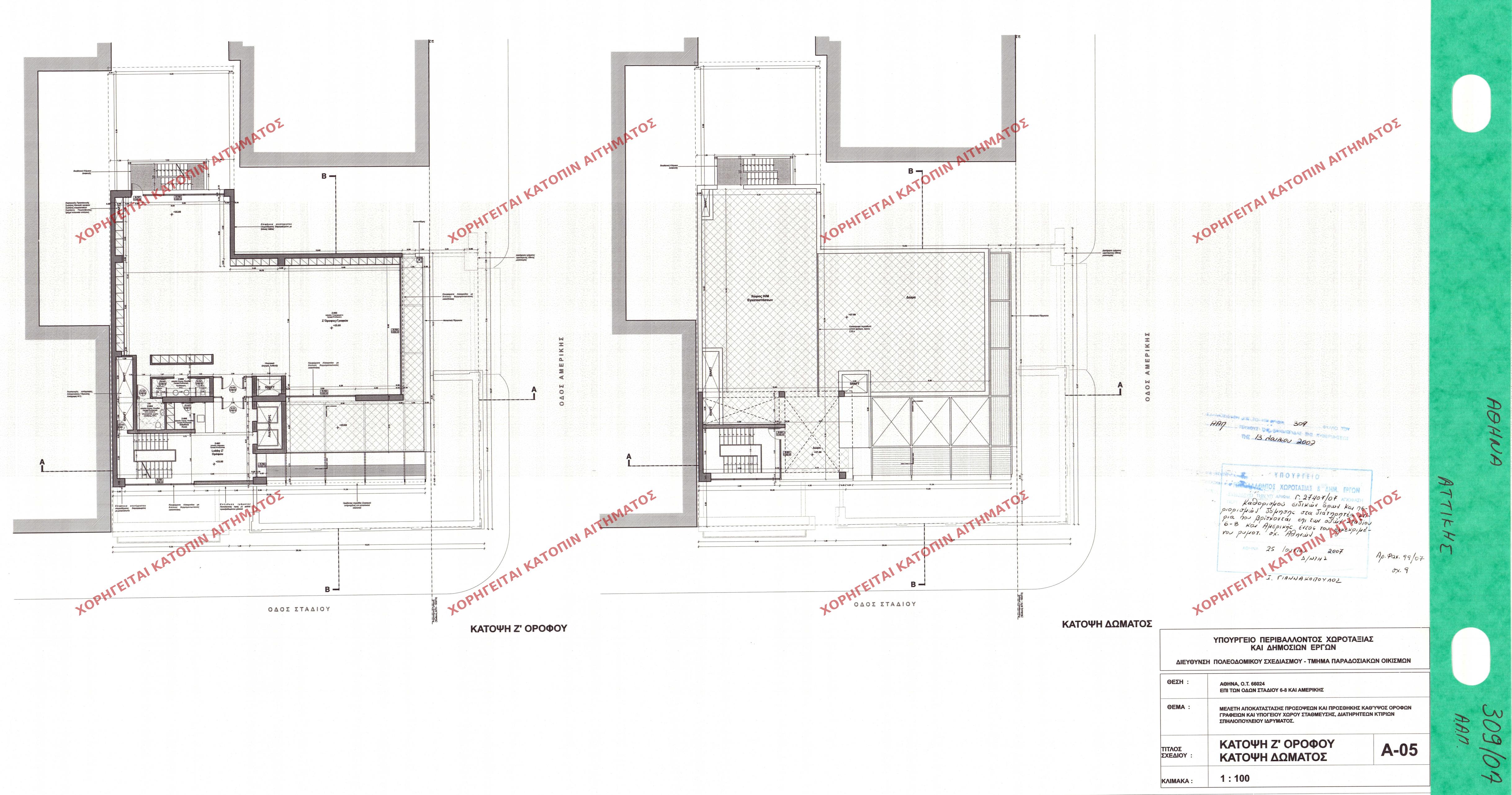
| 43943 | Π.Ε. ΑΤΤΙΚΗΣ | ΑΘΗΝΑ | - | 309 / 2007 | 27407 | ΠΡΩΤΟΤΥΠΟ | ΚΑΤΟΨΗ Ζ ΟΡΟΦΟΥ ΔΩΜΑΤΟΣ | Προβολή | ||
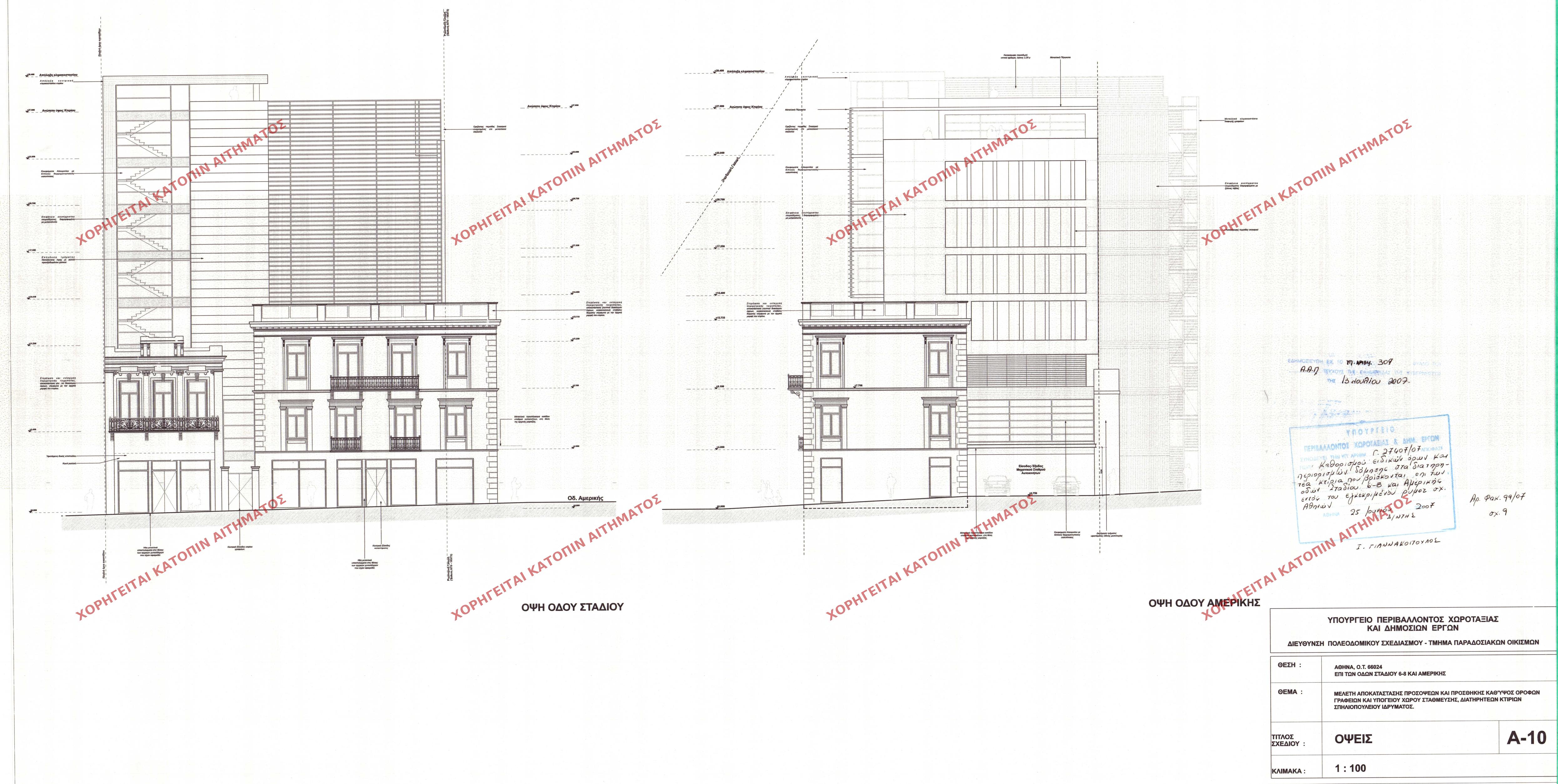
| 43944 | Π.Ε. ΑΤΤΙΚΗΣ | ΑΘΗΝΑ | - | 309 / 2007 | 27407 | ΠΡΩΤΟΤΥΠΟ | ΟΨΕΙΣ | Προβολή | ||
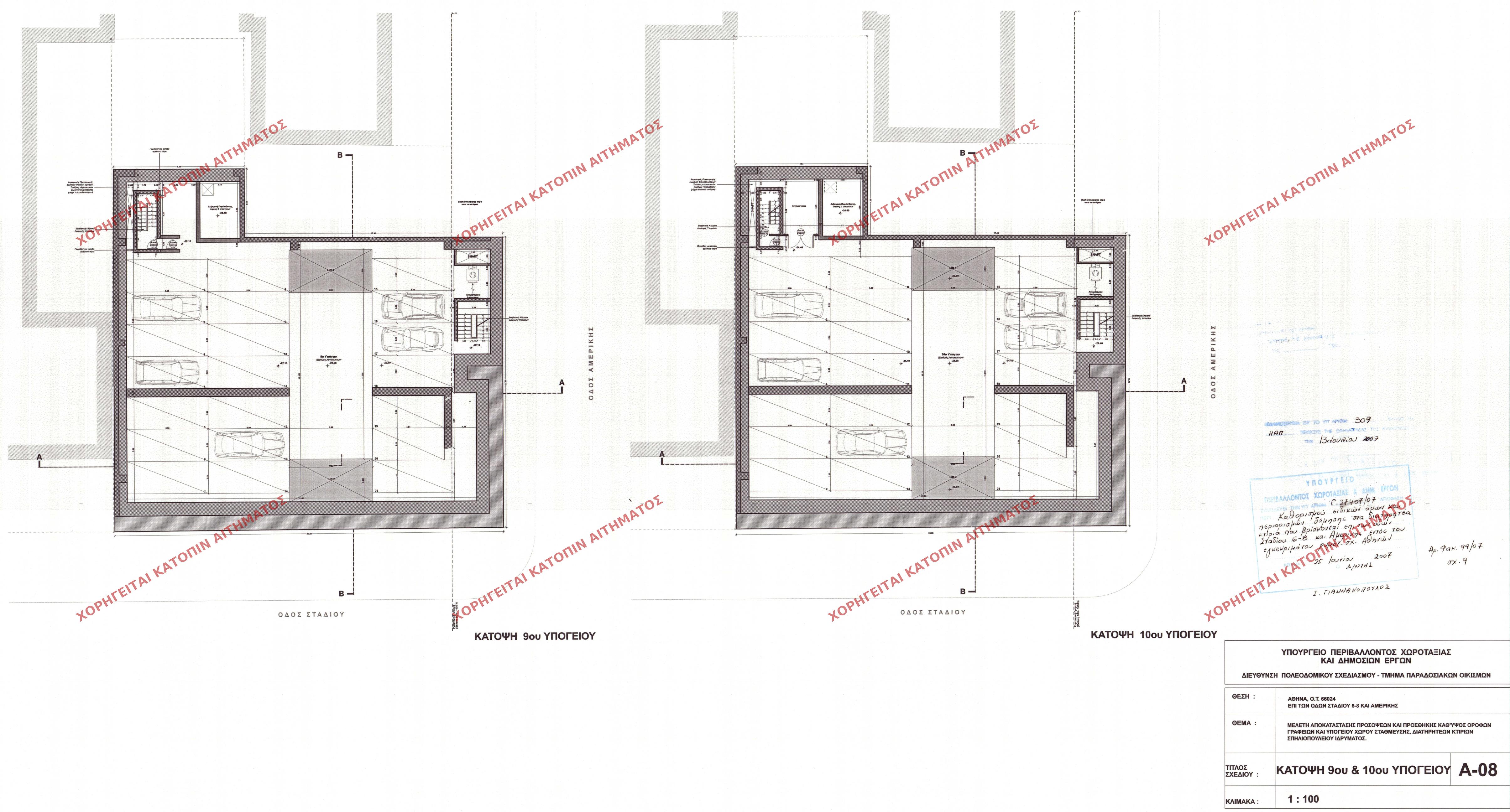
| 43945 | Π.Ε. ΑΤΤΙΚΗΣ | ΑΘΗΝΑ | - | 309 / 2007 | 27407 | ΠΡΩΤΟΤΥΠΟ | ΚΑΤΟΨΗ 9ου 10ου ΥΠΟΓΕΙΟΥ | Προβολή | ||
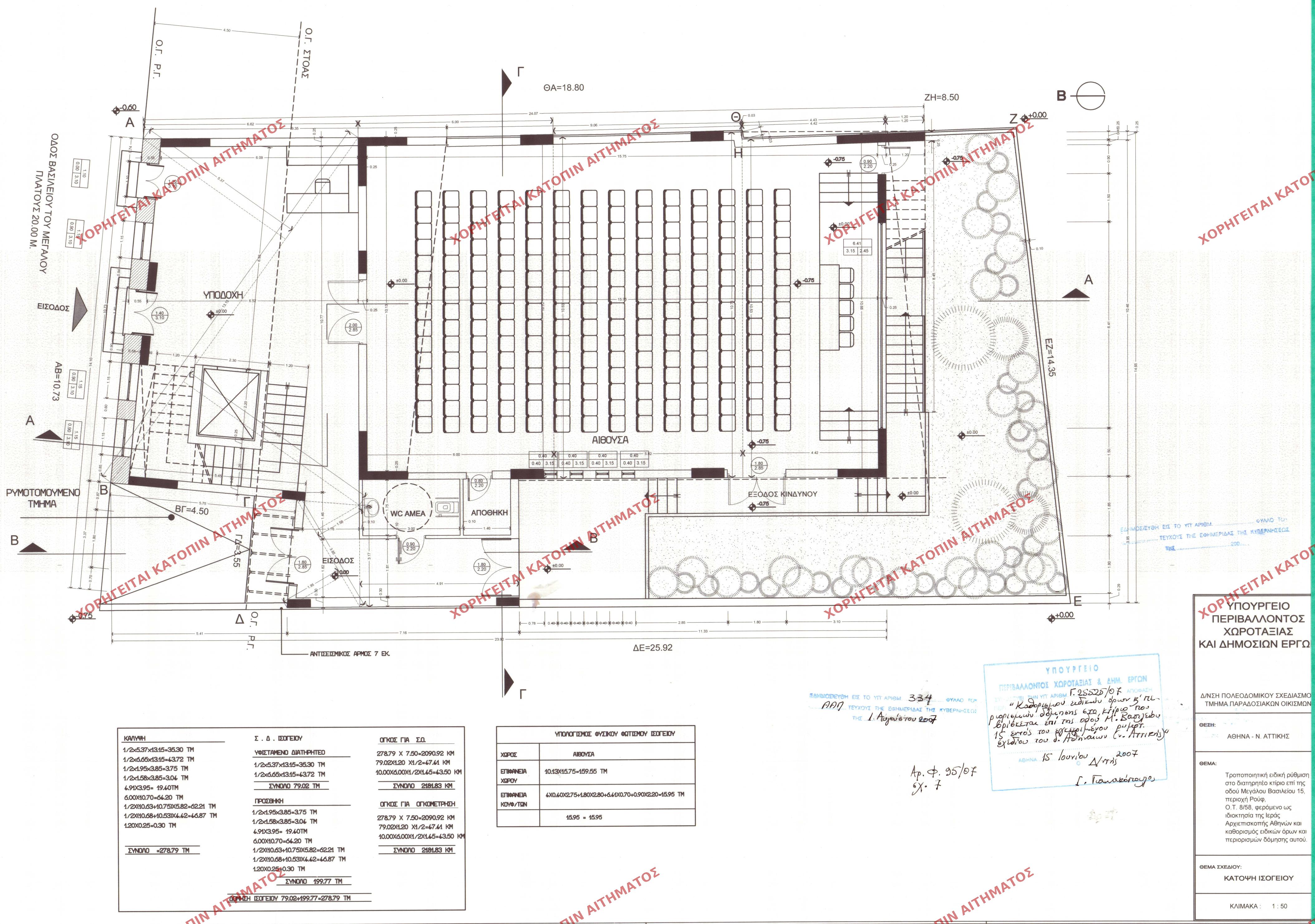
| 43946 | Π.Ε. ΑΤΤΙΚΗΣ | ΑΘΗΝΑ | - | 334 / 2007 | 25525 | ΠΡΩΤΟΤΥΠΟ | ΚΑΤΟΨΗ ΙΣΟΓΕΙΟΥ | Προβολή | ||
| 43947 | Π.Ε. ΑΤΤΙΚΗΣ | ΑΘΗΝΑ | - | 334 / 2007 | 25525 | ΠΡΩΤΟΤΥΠΟ | ΔΙΑΓΡΑΜΜΑ ΚΑΛΥΨΗΣ | Προβολή | ||
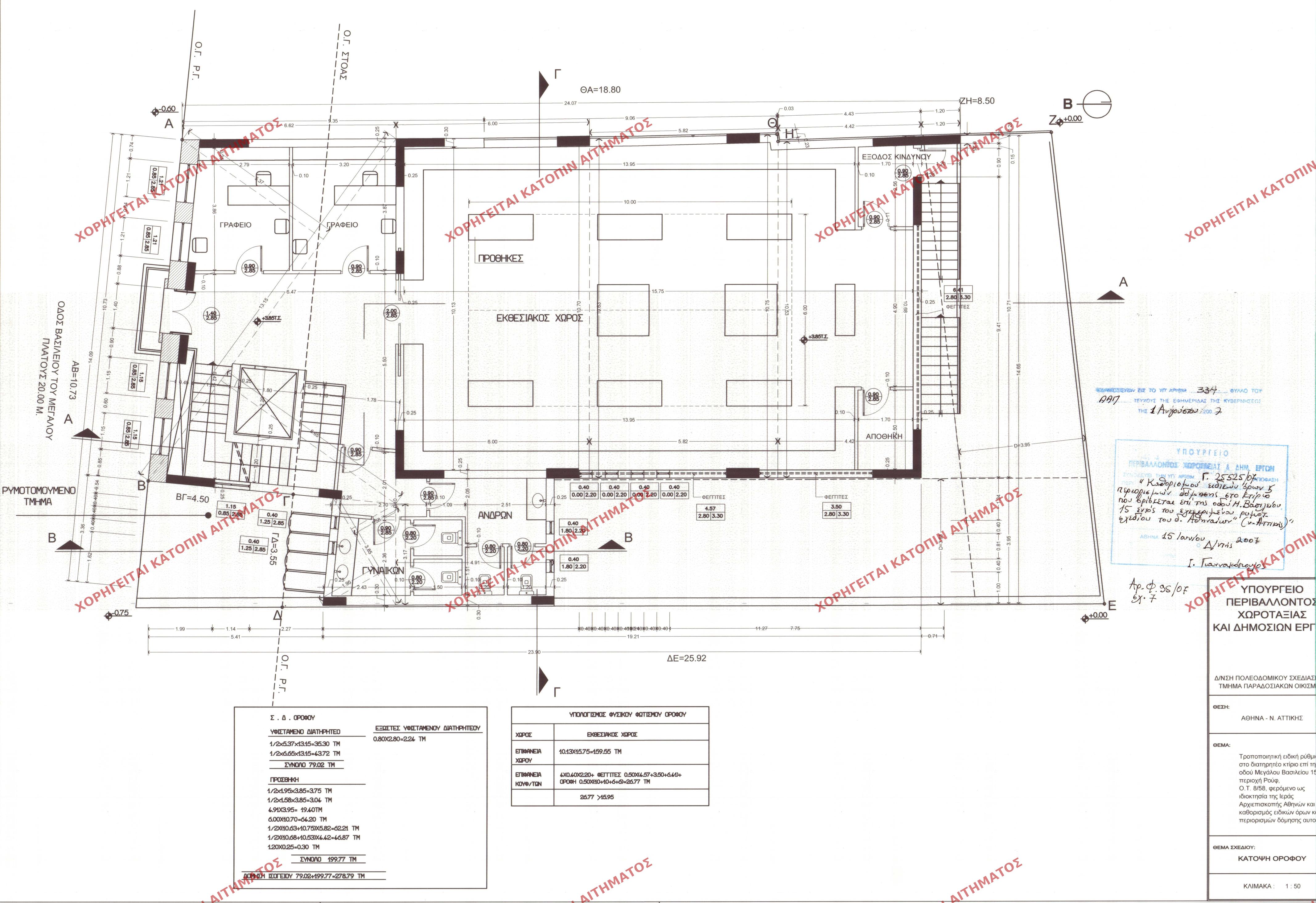
| 43948 | Π.Ε. ΑΤΤΙΚΗΣ | ΑΘΗΝΑ | - | 334 / 2007 | 25525 | ΠΡΩΤΟΤΥΠΟ | ΚΑΤΟΨΗ ΟΡΟΦΟΥ | Προβολή | ||
| 43949 | Π.Ε. ΑΤΤΙΚΗΣ | ΑΘΗΝΑ | - | 530 / 2005 | 17509 | ΠΡΩΤΟΤΥΠΟ | 01 | Προβολή | ||
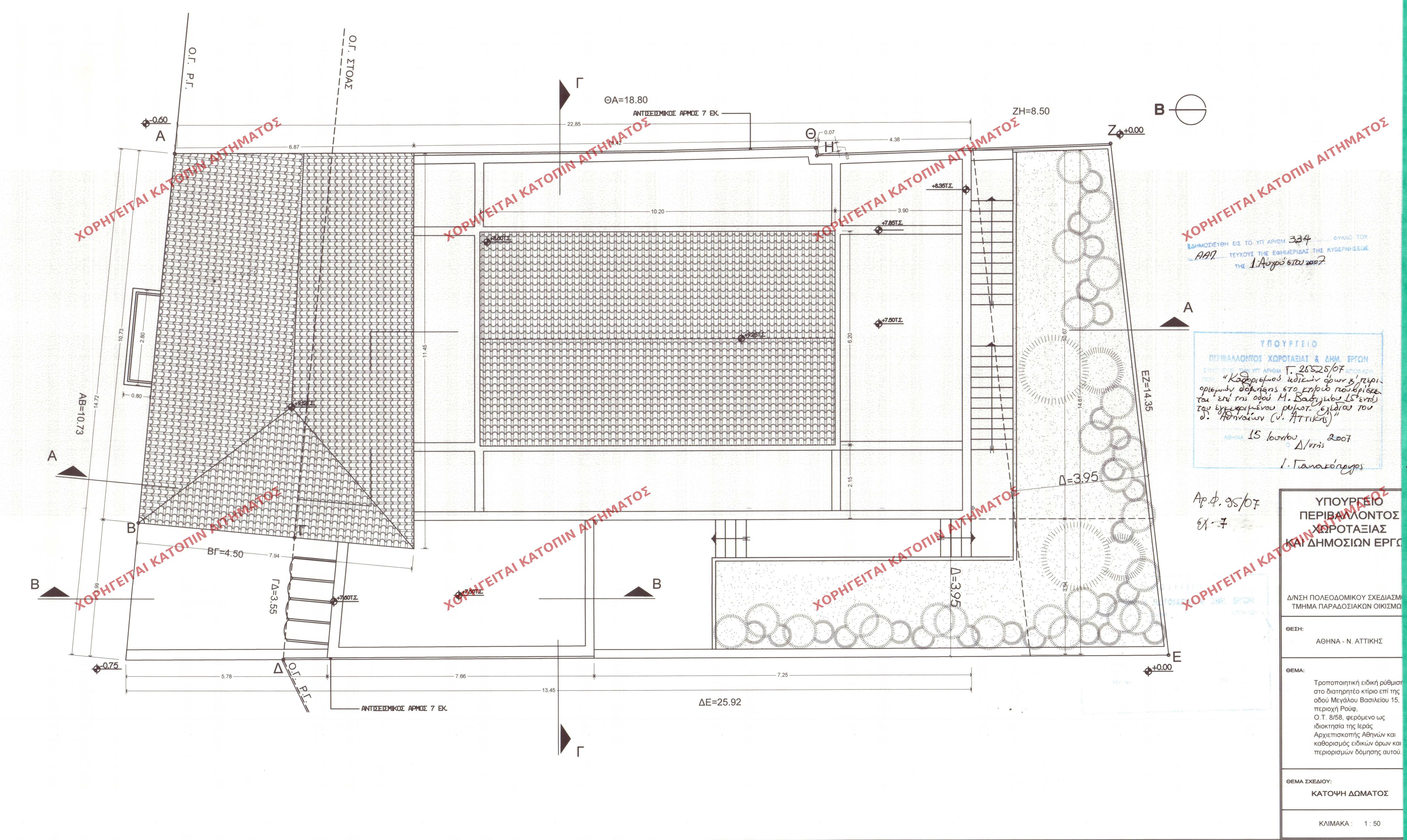
| 43950 | Π.Ε. ΑΤΤΙΚΗΣ | ΑΘΗΝΑ | - | 334 / 2007 | 25525 | ΠΡΩΤΟΤΥΠΟ | ΚΑΤΟΨΗ ΔΩΜΑΤΟΣ | Προβολή | ||
| 43951 | Π.Ε. ΑΤΤΙΚΗΣ | ΑΘΗΝΑ | - | 334 / 2007 | 25525 | ΠΡΩΤΟΤΥΠΟ | ΤΟΜΗ Γ-Γ ΝΟΤΙΑ ΟΨΗ | Προβολή | ||
| 43952 | Π.Ε. ΑΤΤΙΚΗΣ | ΑΘΗΝΑ | - | 334 / 2007 | 25525 | ΠΡΩΤΟΤΥΠΟ | ΒΟΡΕΙΑ ΟΨΗ | Προβολή | ||
| 43953 | Π.Ε. ΑΤΤΙΚΗΣ | ΑΘΗΝΑ | - | 403 / 2007 | 34501 | ΠΡΩΤΟΤΥΠΟ | ΔΙΑΓΡΑΜΜΑ ΚΑΛΥΨΗΣ ΠΡΟΣΘΗΚΗ ΚΑΤΟΨΗ Β | Προβολή | ||
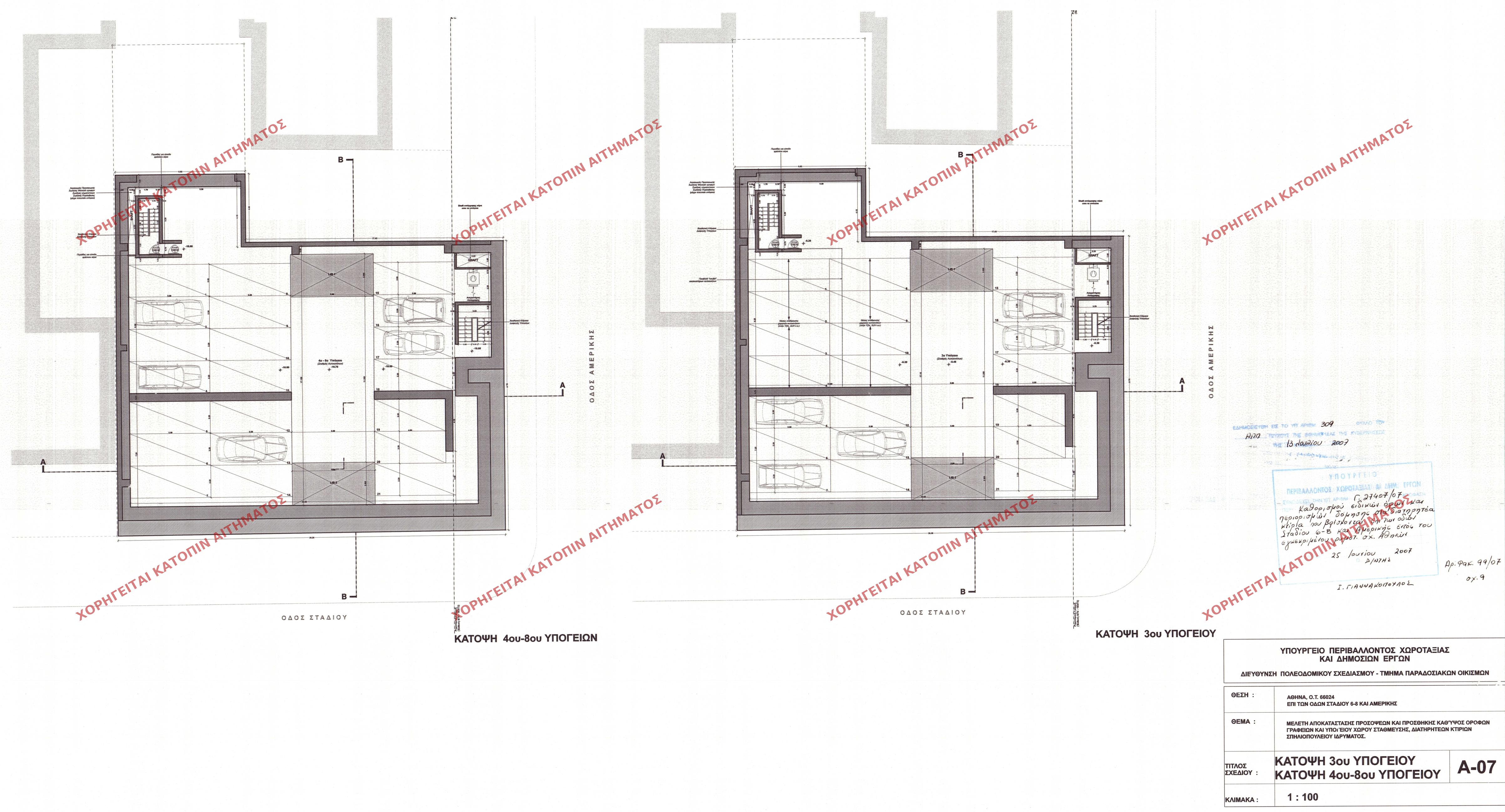
| 43940 | Π.Ε. ΑΤΤΙΚΗΣ | ΑΘΗΝΑ | - | 309 / 2007 | 27407 | ΠΡΩΤΟΤΥΠΟ | ΚΑΤΟΨΗ 3ου 4ου 8ου ΥΠΟΓΕΙΟΥ | Προβολή | ||
| 43955 | Π.Ε. ΑΤΤΙΚΗΣ | ΑΘΗΝΑ | - | 409 / 2007 | 32106 | ΠΡΩΤΟΤΥΠΟ | 01 | Προβολή | ||
| 43956 | Π.Ε. ΑΤΤΙΚΗΣ | ΑΘΗΝΑ | - | 429 / 2007 | 37007 | ΔΗΜΟΣΙΕΥΜΕΝΟ ΣΕ ΦΕΚ | 13.01 | Προβολή | ||
| 43957 | Π.Ε. ΑΤΤΙΚΗΣ | ΑΘΗΝΑ | - | 431 / 2007 | 36063 | ΠΡΩΤΟΤΥΠΟ | 01 | Προβολή | ||
| 43958 | Π.Ε. ΑΤΤΙΚΗΣ | ΑΘΗΝΑ | - | 431 / 2007 | 32103 | ΠΡΩΤΟΤΥΠΟ | 01 | Προβολή | ||
| 43959 | Π.Ε. ΑΤΤΙΚΗΣ | ΑΘΗΝΑ | - | 312 / 2007 | 27413 | ΠΡΩΤΟΤΥΠΟ | ΤΟΜΕΣ-ΠΡΟΣΟΨΗ | Προβολή | ||
| 43960 | Π.Ε. ΑΤΤΙΚΗΣ | ΑΘΗΝΑ | - | 539 / 2005 | 18486 | ΠΡΩΤΟΤΥΠΟ | 01 | Προβολή | ||
| 43961 | Π.Ε. ΑΤΤΙΚΗΣ | ΑΘΗΝΑ | - | 312 / 2007 | 27413 | ΠΡΩΤΟΤΥΠΟ | ΚΑΤΟΨΕΙΣ | Προβολή |