| Κωδ. Διαγρ. | Περιφερειακή Ενότητα | Δήμος κατά ΦΕΚ / Κοινότητα | Θέση | Αριθμός και Έτος ΦΕΚ | Αριθμός Πράξης | Τύπος Διαγράμματος | Πινακίδα | Ενέργειες | ||
|---|---|---|---|---|---|---|---|---|---|---|
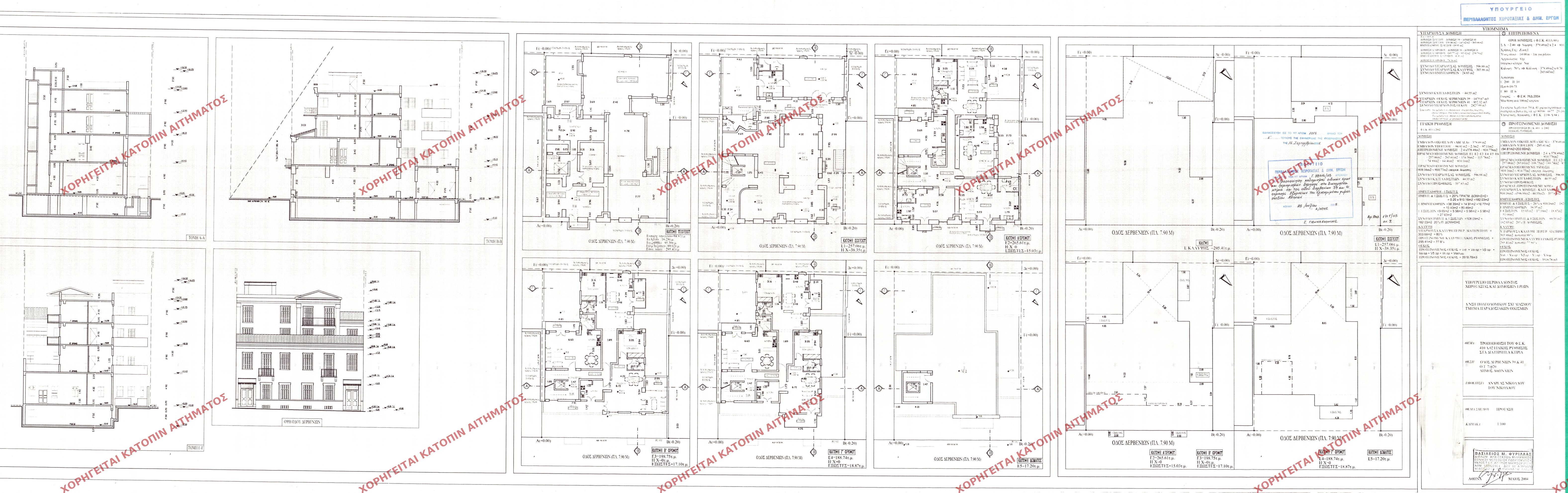
| 43624 | Π.Ε. ΑΤΤΙΚΗΣ | ΑΘΗΝΑ | - | 36 / 2006 | 37904 | ΠΡΩΤΟΤΥΠΟ | ΤΟΜΕΣ | Προβολή | ||
| 43625 | Π.Ε. ΑΤΤΙΚΗΣ | ΑΘΗΝΑ | - | 1015 / 2005 | 32014 | ΠΡΩΤΟΤΥΠΟ | 01 | Προβολή | ||
| 43626 | Π.Ε. ΑΤΤΙΚΗΣ | ΑΘΗΝΑ | - | 36 / 2006 | 37904 | ΠΡΩΤΟΤΥΠΟ | ΚΑΤΟΨΕΙΣ | Προβολή | ||
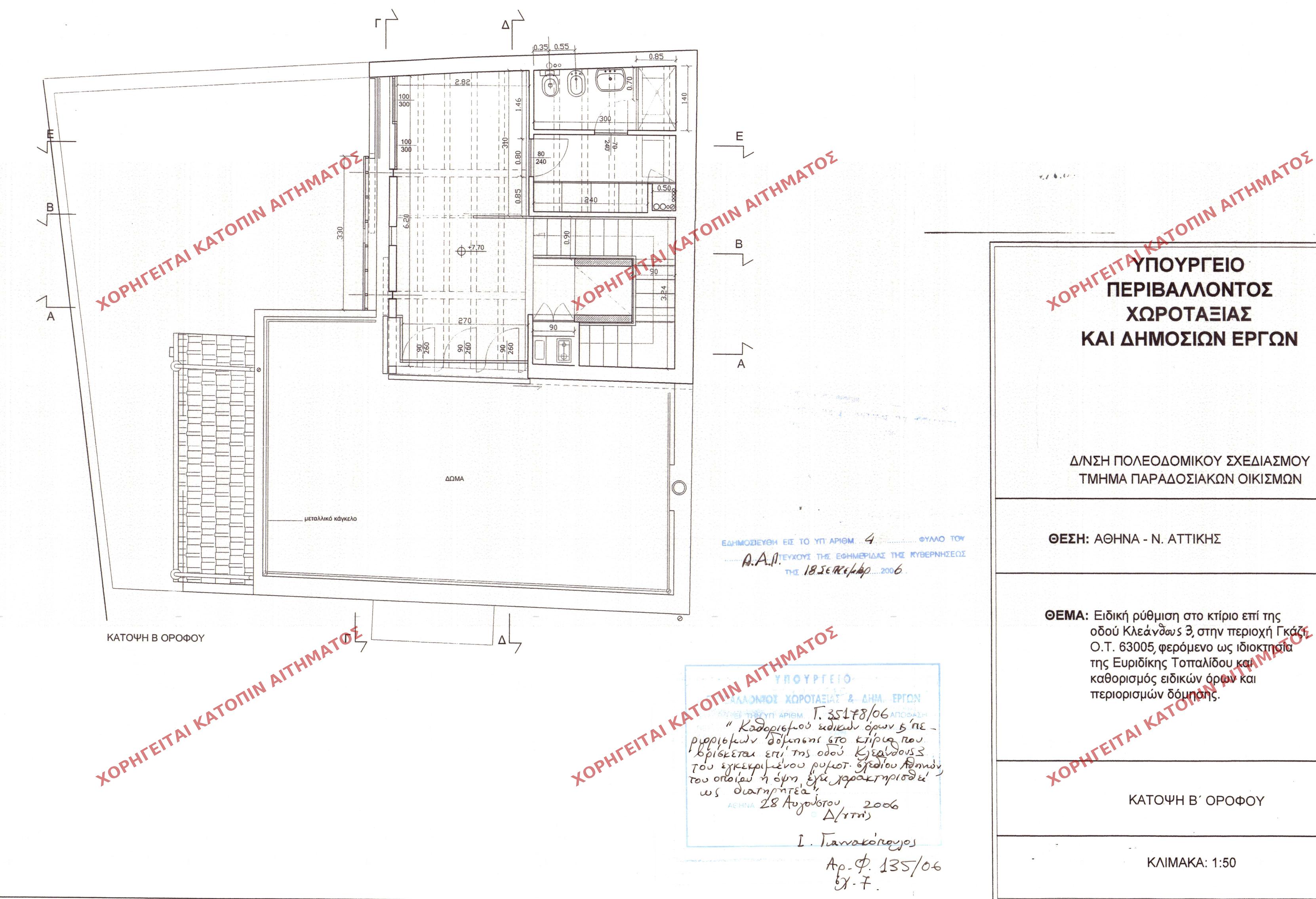
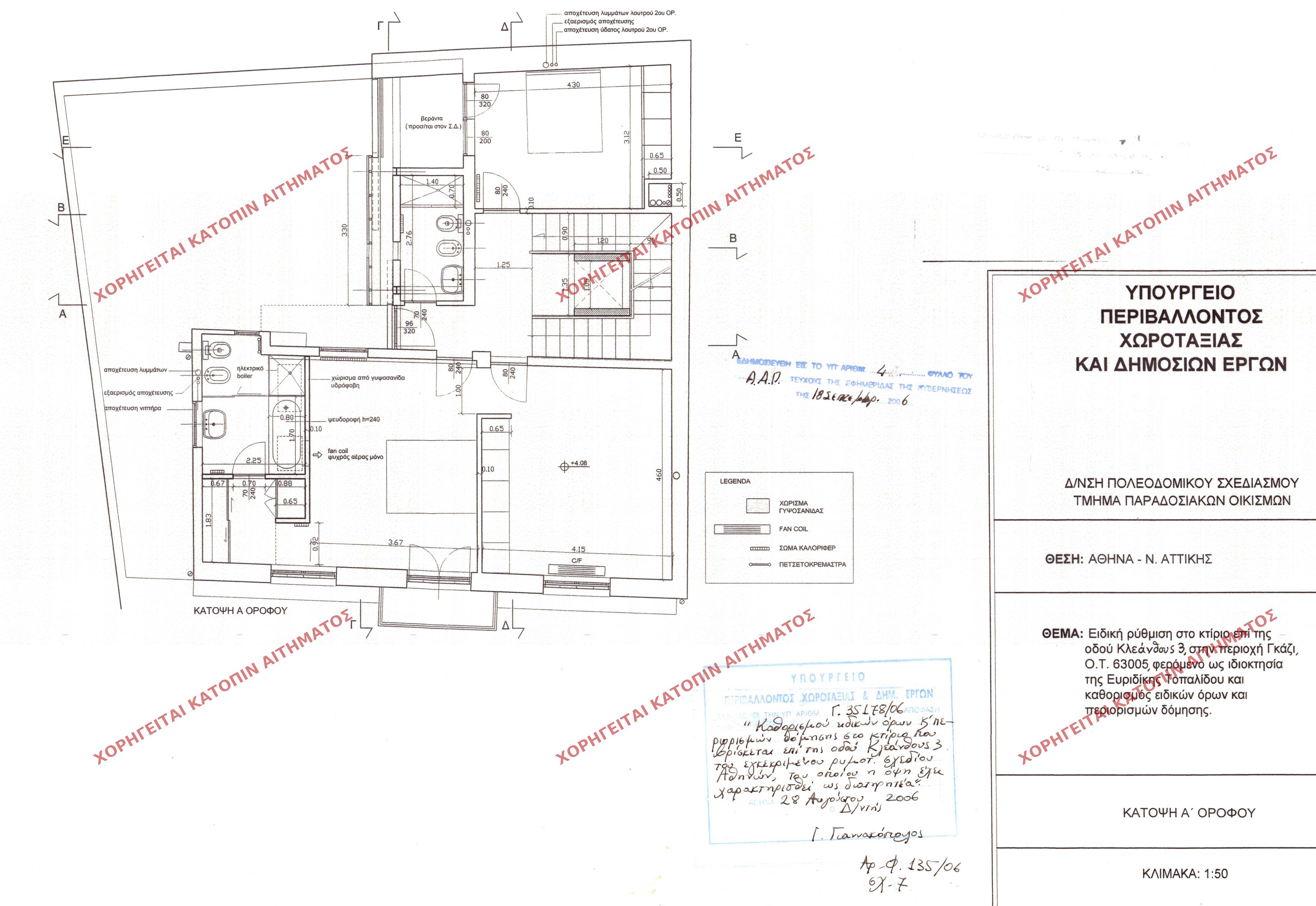
| 43613 | Π.Ε. ΑΤΤΙΚΗΣ | ΑΘΗΝΑ | - | 4 / 2006 | 35178 | ΠΡΩΤΟΤΥΠΟ | ΚΑΤΟΨΗ Β ΟΡΟΦΟΥ | Προβολή | ||
| 43628 | Π.Ε. ΑΤΤΙΚΗΣ | ΑΘΗΝΑ | - | 36 / 2006 | 37904 | ΠΡΩΤΟΤΥΠΟ | ΟΨΕΙΣ | Προβολή | ||
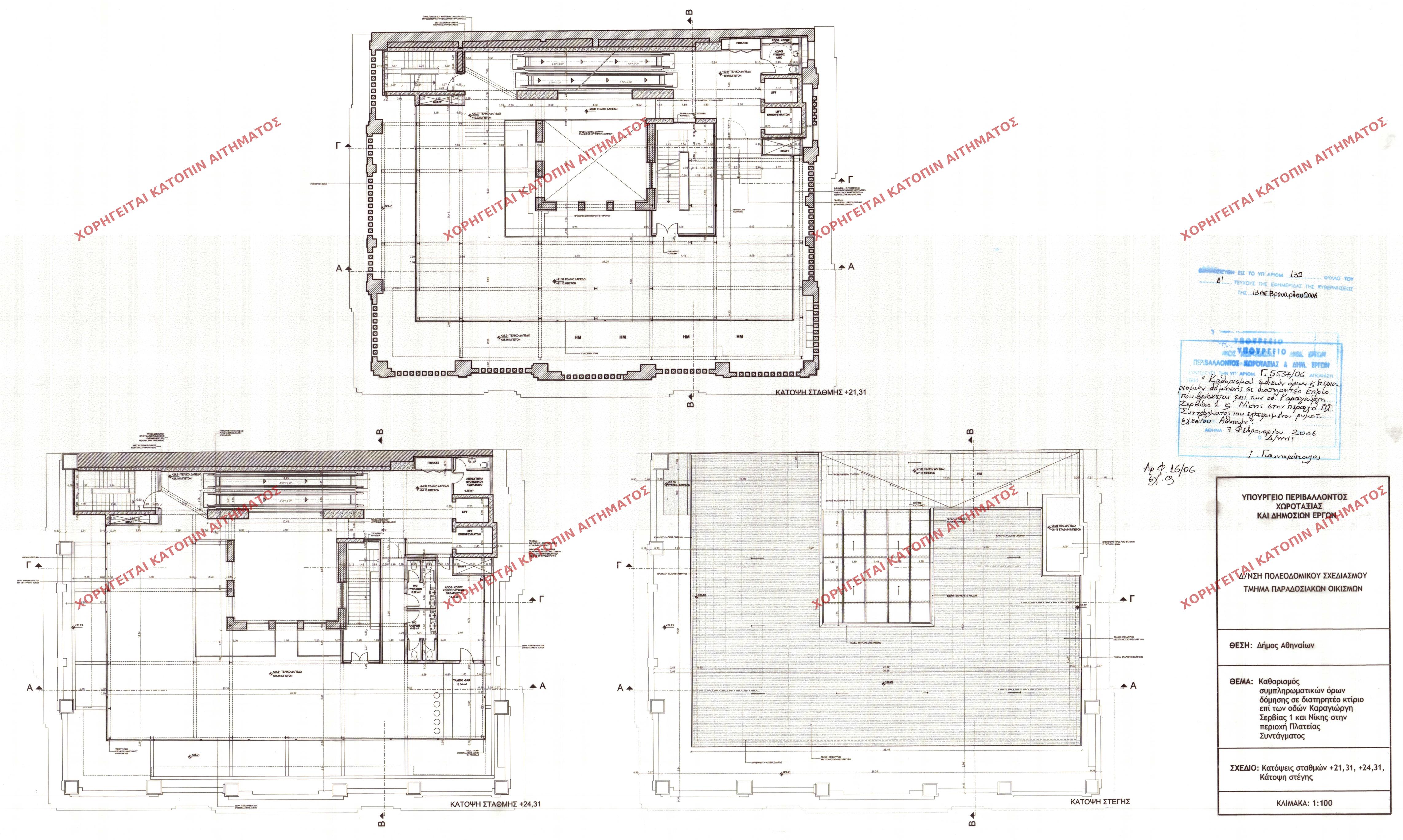
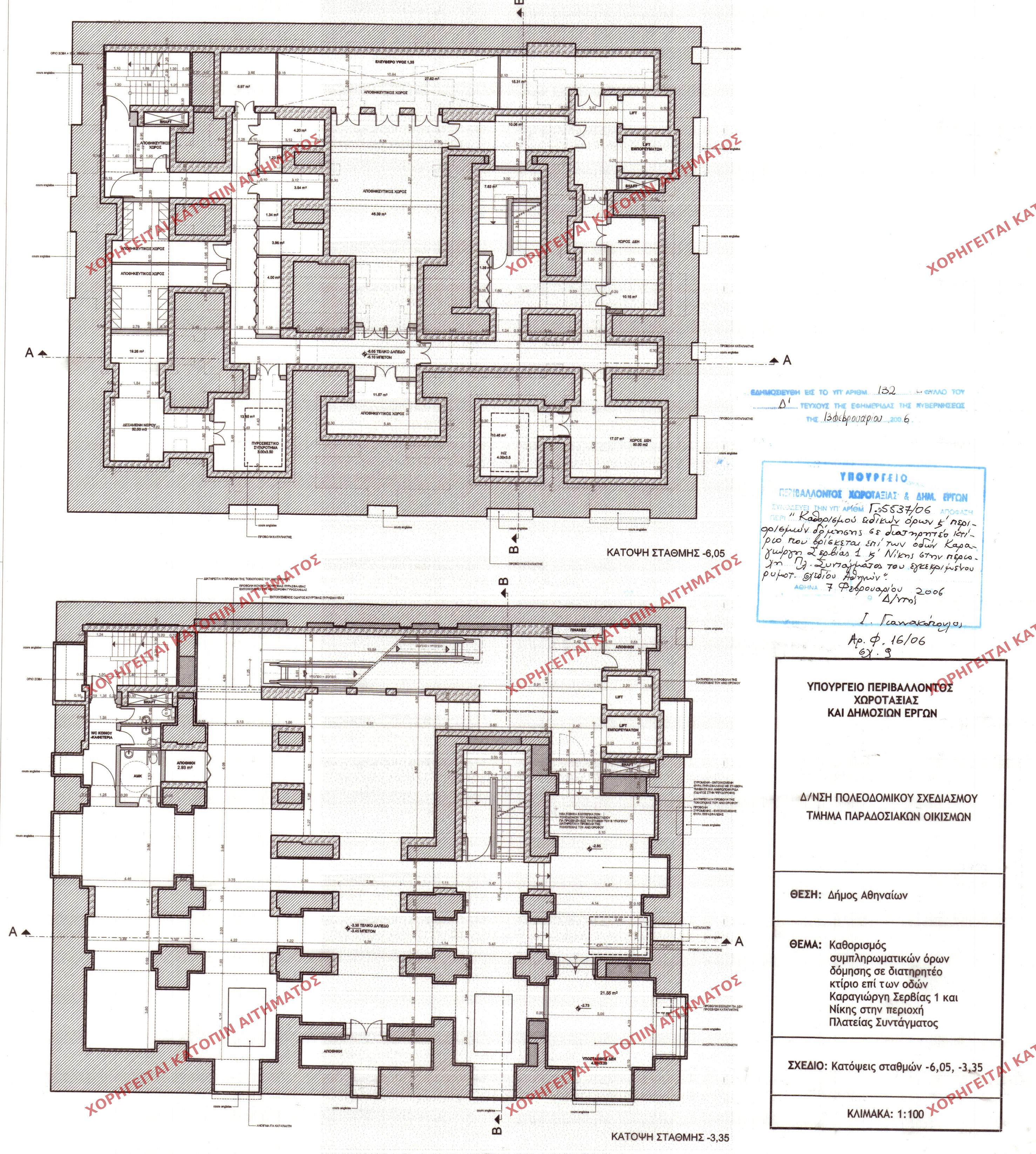
| 43629 | Π.Ε. ΑΤΤΙΚΗΣ | ΑΘΗΝΑ | - | 132 / 2006 | 5537 | ΠΡΩΤΟΤΥΠΟ | ΚΑΤΟΨΕΙΣ ΣΤΑΘΜΩΝ | Προβολή | ||
| 43630 | Π.Ε. ΑΤΤΙΚΗΣ | ΑΘΗΝΑ | - | 132 / 2006 | 5537 | ΠΡΩΤΟΤΥΠΟ | ΔΙΑΓΡΑΜΜΑ ΚΑΛΥΨΗΣ 2 | Προβολή | ||
| 43631 | Π.Ε. ΑΤΤΙΚΗΣ | ΑΘΗΝΑ | - | 132 / 2006 | 5537 | ΠΡΩΤΟΤΥΠΟ | ΚΑΤΟΨΕΙΣ ΣΤΑΘΜΩΝ | Προβολή | ||
| 43632 | Π.Ε. ΑΤΤΙΚΗΣ | ΑΘΗΝΑ | - | 132 / 2006 | 5537 | ΠΡΩΤΟΤΥΠΟ | ΟΨΗ | Προβολή | ||
| 43633 | Π.Ε. ΑΤΤΙΚΗΣ | ΑΘΗΝΑ | - | 132 / 2006 | 5537 | ΠΡΩΤΟΤΥΠΟ | ΚΑΤΟΨΕΙΣ ΣΤΑΘΜΩΝ | Προβολή | ||
| 43634 | Π.Ε. ΑΤΤΙΚΗΣ | ΑΘΗΝΑ | - | 132 / 2006 | 5537 | ΠΡΩΤΟΤΥΠΟ | ΚΑΤΟΨΕΙΣ ΣΤΑΘΜΩΝ | Προβολή | ||
| 43635 | Π.Ε. ΑΤΤΙΚΗΣ | ΑΘΗΝΑ | - | 132 / 2006 | 5537 | ΠΡΩΤΟΤΥΠΟ | ΔΙΑΓΡΑΜΜΑ ΚΑΛΥΨΗΣ 1 | Προβολή | ||
| 43636 | Π.Ε. ΑΤΤΙΚΗΣ | ΑΘΗΝΑ | - | 132 / 2006 | 5537 | ΠΡΩΤΟΤΥΠΟ | ΤΟΜΕΣ Α-Α,Β-Β,Γ-Γ | Προβολή | ||
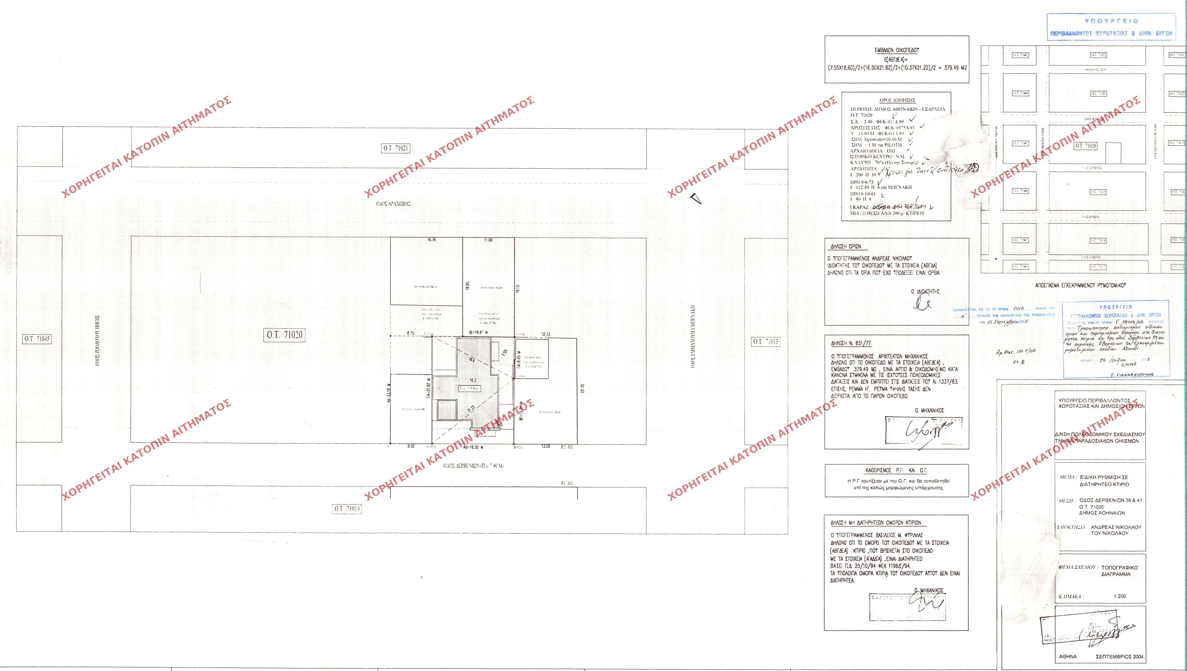
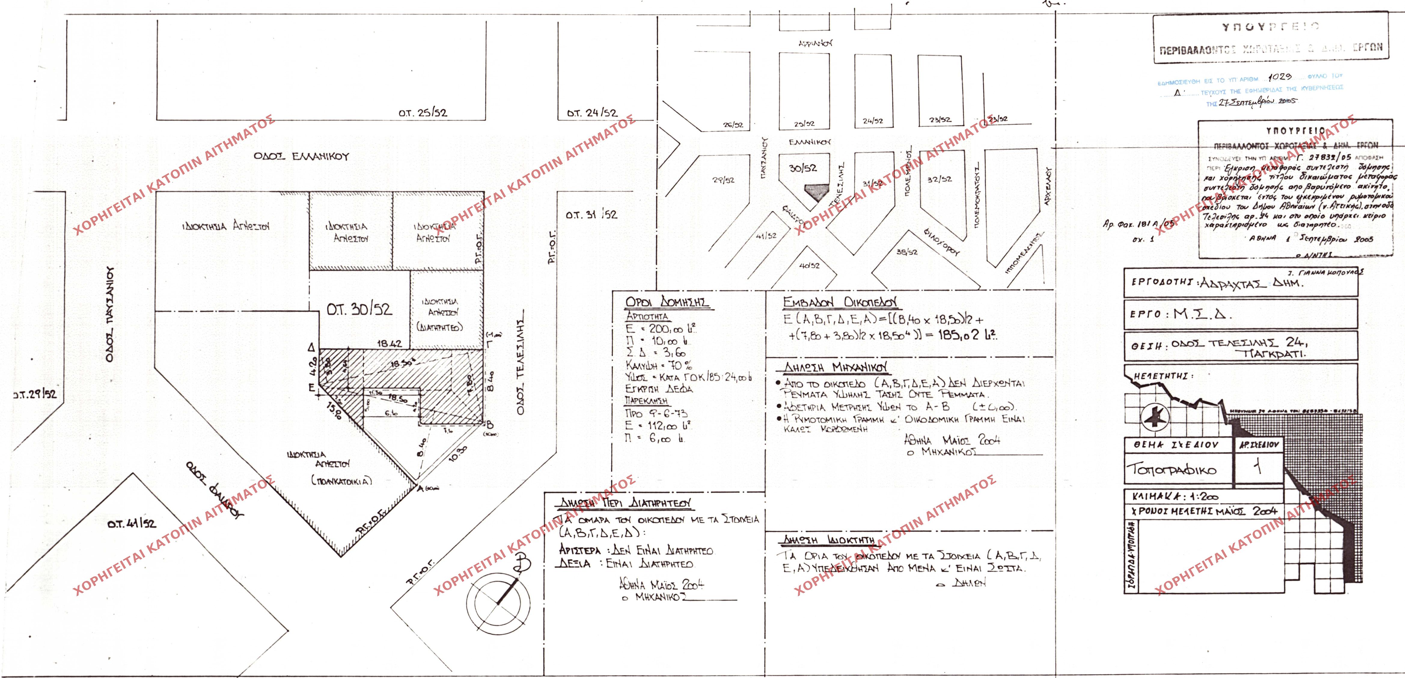
| 43637 | Π.Ε. ΑΤΤΙΚΗΣ | ΑΘΗΝΑ | - | 1029 / 2005 | 27832 | ΠΡΩΤΟΤΥΠΟ | 01 | Προβολή | ||
| 43638 | Π.Ε. ΑΤΤΙΚΗΣ | ΑΘΗΝΑ | - | 431 / 2005 | 15890 | ΠΡΩΤΟΤΥΠΟ | ΟΨΕΙΣ | Προβολή | ||
| 43639 | Π.Ε. ΑΤΤΙΚΗΣ | ΑΘΗΝΑ | - | 132 / 2006 | 5537 | ΠΡΩΤΟΤΥΠΟ | ΟΨΗ ΠΡΟΣ ΟΔΟ ΝΙΚΗΣ ΟΨΗ ΠΛ.ΣΥΝΤΑΓΜΑΤΟΣ | Προβολή | ||
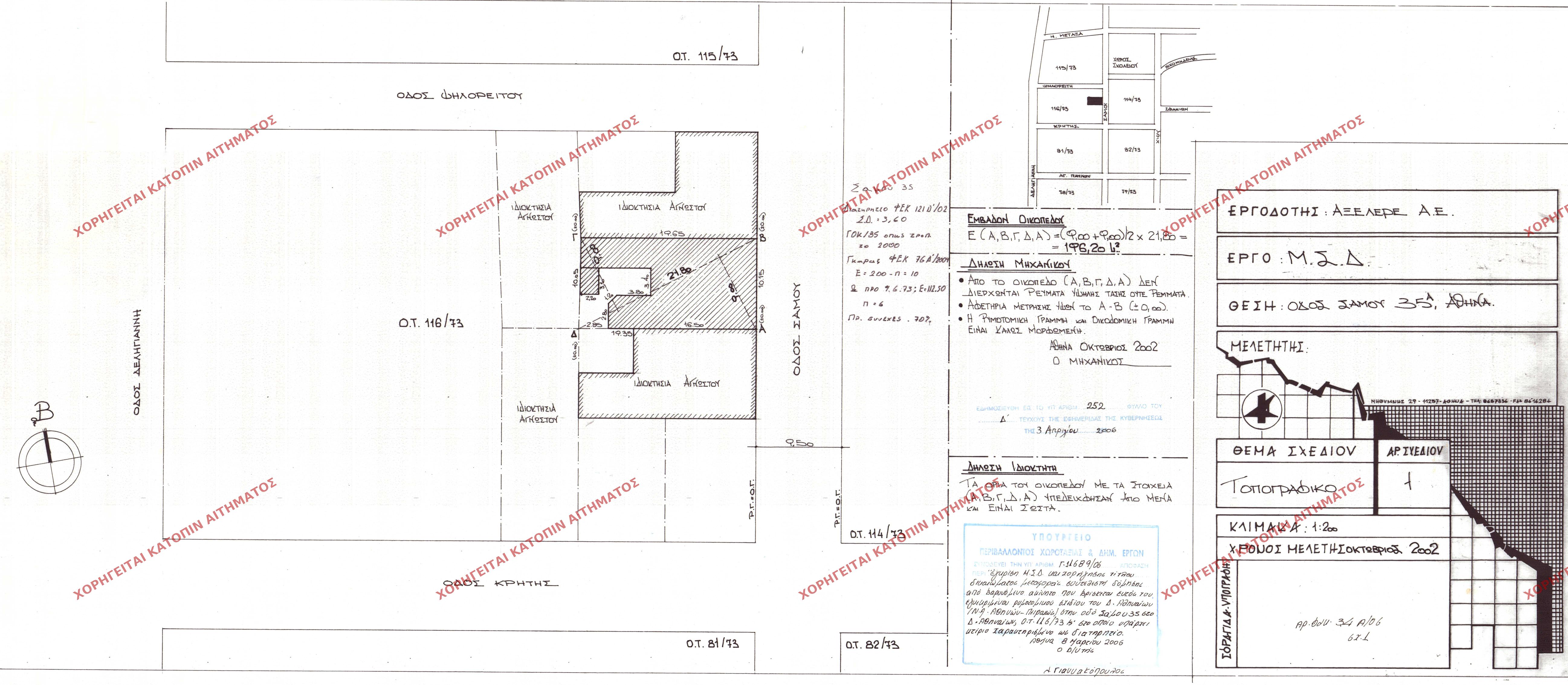
| 43600 | Π.Ε. ΑΤΤΙΚΗΣ | ΑΘΗΝΑ | - | 252 / 2006 | 11689 | ΠΡΩΤΟΤΥΠΟ | 01 | Προβολή | ||
| 43956 | Π.Ε. ΑΤΤΙΚΗΣ | ΑΘΗΝΑ | - | 429 / 2007 | 37007 | ΔΗΜΟΣΙΕΥΜΕΝΟ ΣΕ ΦΕΚ | 13.01 | Προβολή | ||
| 43588 | Π.Ε. ΑΤΤΙΚΗΣ | ΑΘΗΝΑ | - | 1015 / 2005 | 32014 | ΔΗΜΟΣΙΕΥΜΕΝΟ ΣΕ ΦΕΚ | 01 | Προβολή | ||
| 43589 | Π.Ε. ΑΤΤΙΚΗΣ | ΑΘΗΝΑ | - | 4 / 2006 | 35178 | ΠΡΩΤΟΤΥΠΟ | ΚΑΤΟΨΗ Α ΟΡΟΦΟΥ | Προβολή |