| Κωδ. Διαγρ. | Περιφερειακή Ενότητα | Δήμος κατά ΦΕΚ / Κοινότητα | Θέση | Αριθμός και Έτος ΦΕΚ | Αριθμός Πράξης | Τύπος Διαγράμματος | Πινακίδα | Ενέργειες | ||
|---|---|---|---|---|---|---|---|---|---|---|
| 43742 | Π.Ε. ΑΤΤΙΚΗΣ | ΑΘΗΝΑ | - | 171 / 2007 | 16379 | ΠΡΩΤΟΤΥΠΟ | ΥΠΟΓΕΙΟ | Προβολή | ||
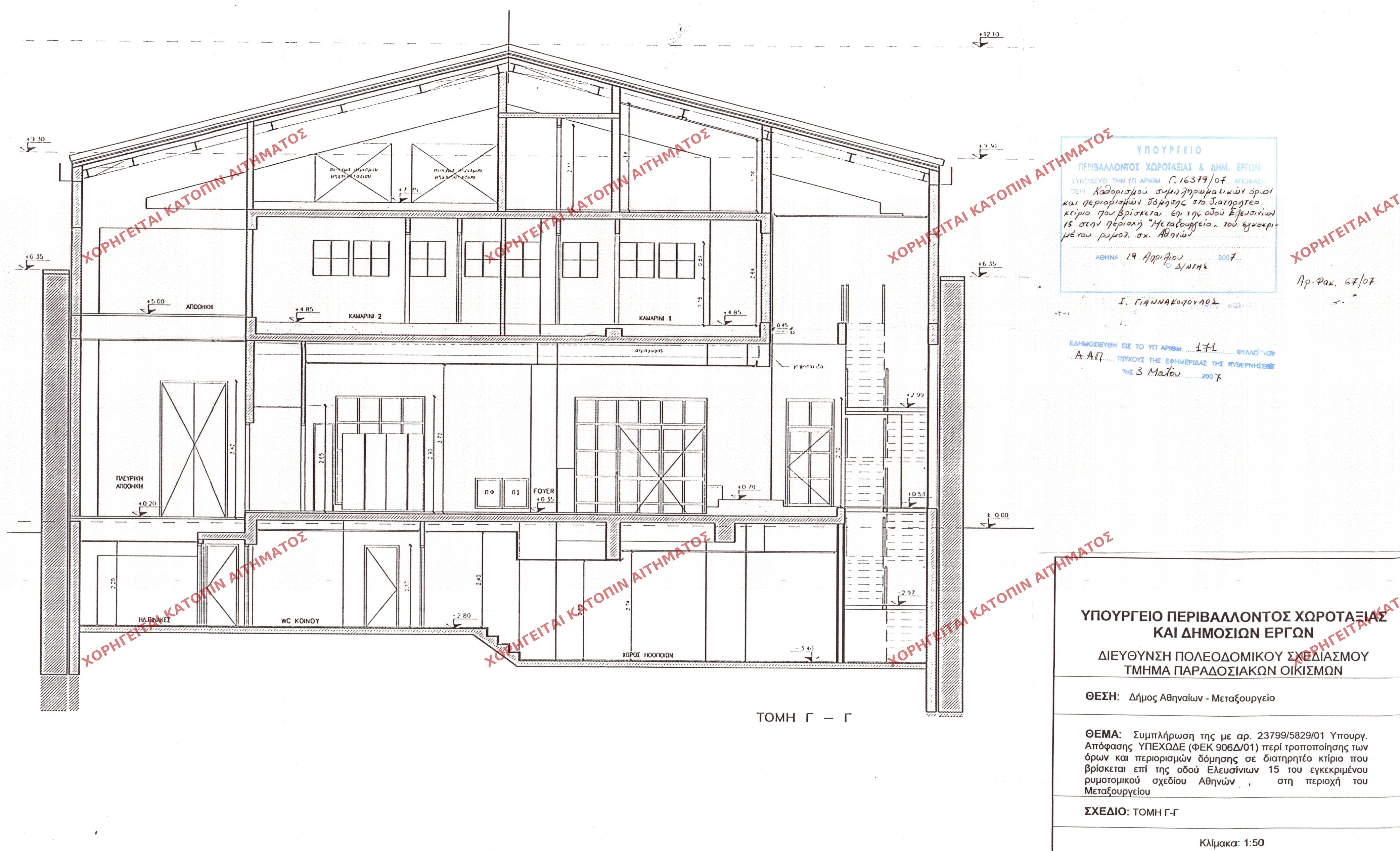
| 43743 | Π.Ε. ΑΤΤΙΚΗΣ | ΑΘΗΝΑ | - | 171 / 2007 | 16379 | ΠΡΩΤΟΤΥΠΟ | ΤΟΜΗ Γ-Γ | Προβολή | ||
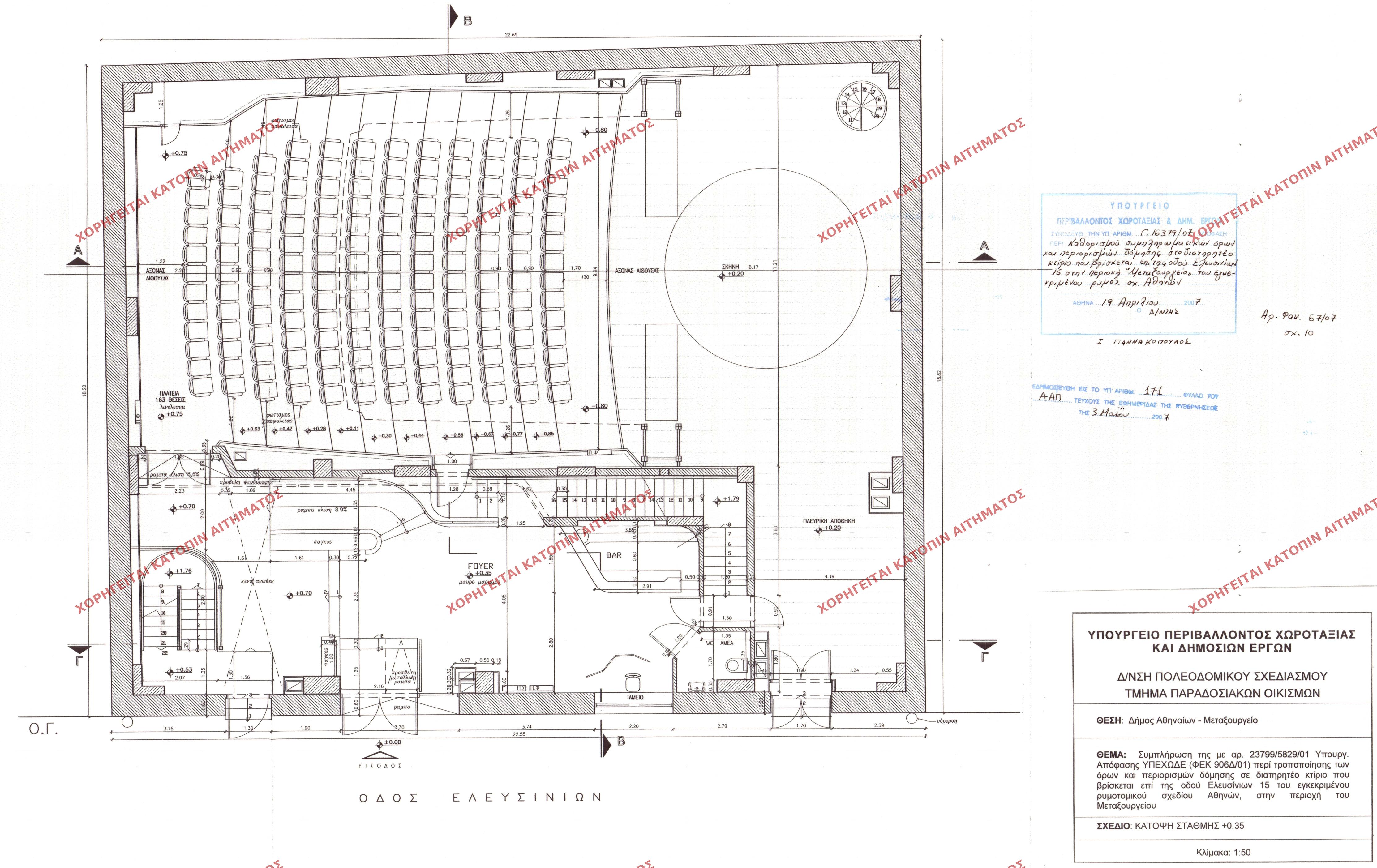
| 43744 | Π.Ε. ΑΤΤΙΚΗΣ | ΑΘΗΝΑ | - | 171 / 2007 | 16379 | ΠΡΩΤΟΤΥΠΟ | ΚΑΤΟΨΗ ΣΤΑΘΜΗΣ | Προβολή | ||
| 43745 | Π.Ε. ΑΤΤΙΚΗΣ | ΑΘΗΝΑ | - | 171 / 2007 | 16379 | ΠΡΩΤΟΤΥΠΟ | ΚΑΛΥΨΗ | Προβολή | ||
| 43746 | Π.Ε. ΑΤΤΙΚΗΣ | ΑΘΗΝΑ | - | 178 / 2007 | 15507 | ΠΡΩΤΟΤΥΠΟ | 01 | Προβολή | ||
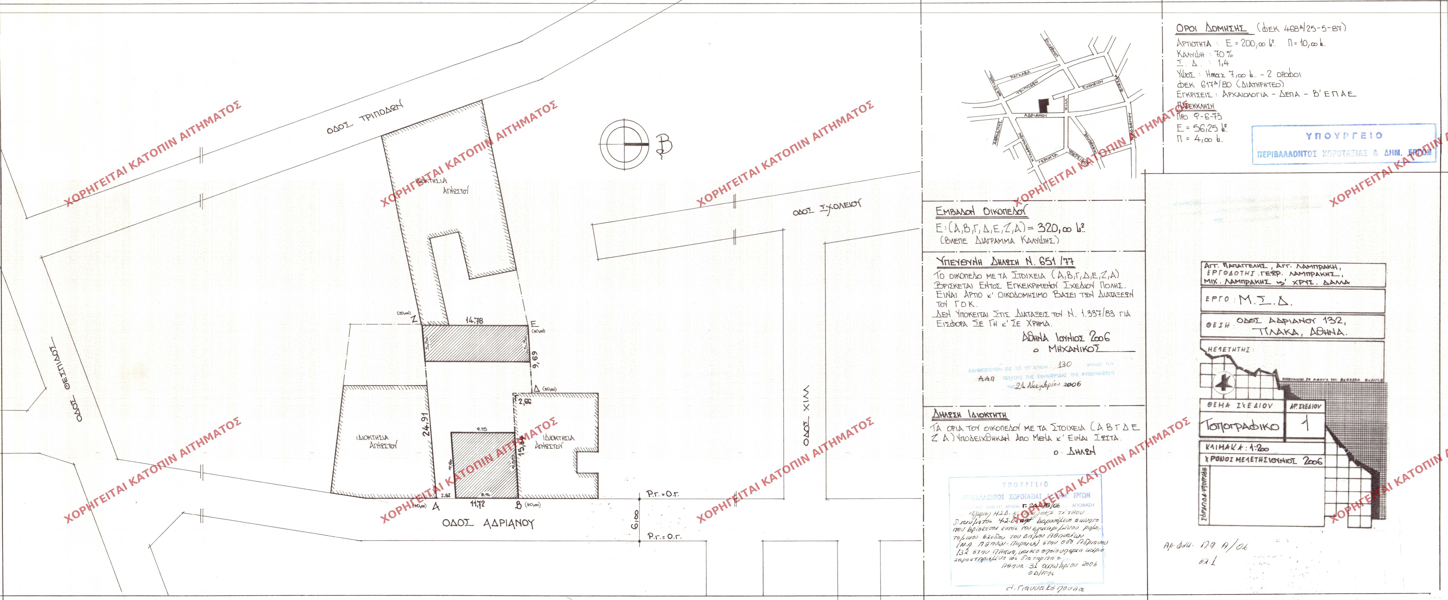
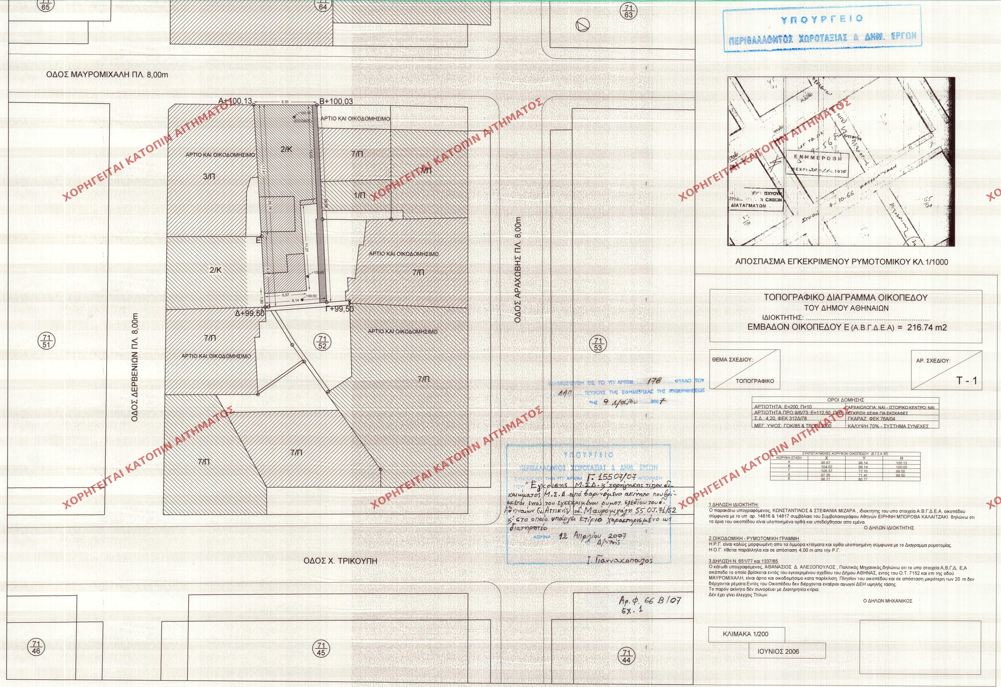
| 43747 | Π.Ε. ΑΤΤΙΚΗΣ | ΑΘΗΝΑ | - | 181 / 2007 | 16791 | ΠΡΩΤΟΤΥΠΟ | ΤΟΠΟΓΡΑΦΙΚΟ ΔΙΑΓΡΑΜΜΑ | Προβολή | ||
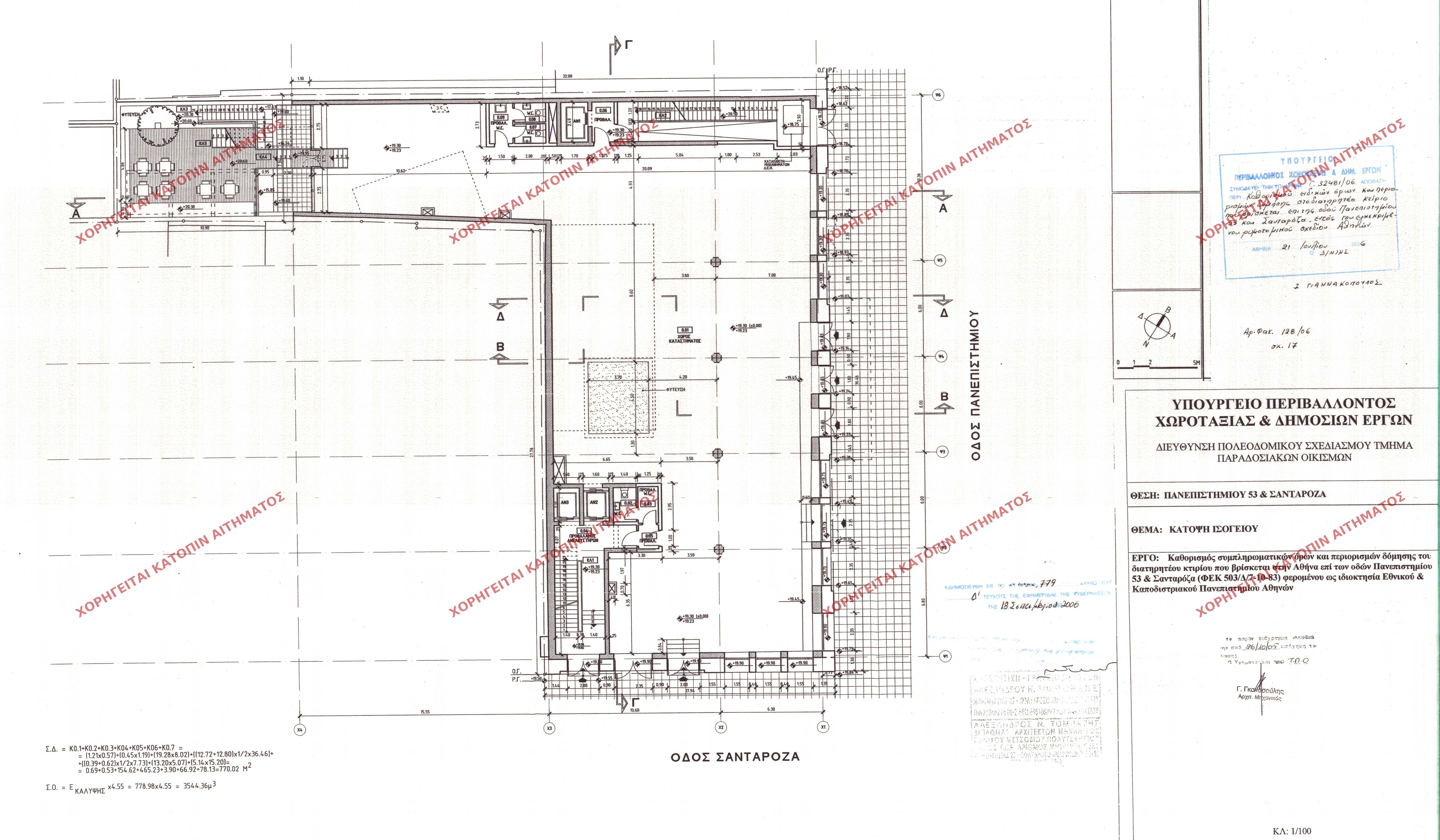
| 43748 | Π.Ε. ΑΤΤΙΚΗΣ | ΑΘΗΝΑ | - | 779 / 2006 | 32481 | ΠΡΩΤΟΤΥΠΟ | ΚΑΤΟΨΗ ΙΣΟΓΕΙΟΥ | Προβολή | ||
| 43708 | Π.Ε. ΑΤΤΙΚΗΣ | ΑΘΗΝΑ | - | 130 / 2006 | 24275 | ΠΡΩΤΟΤΥΠΟ | 01 | Προβολή | ||
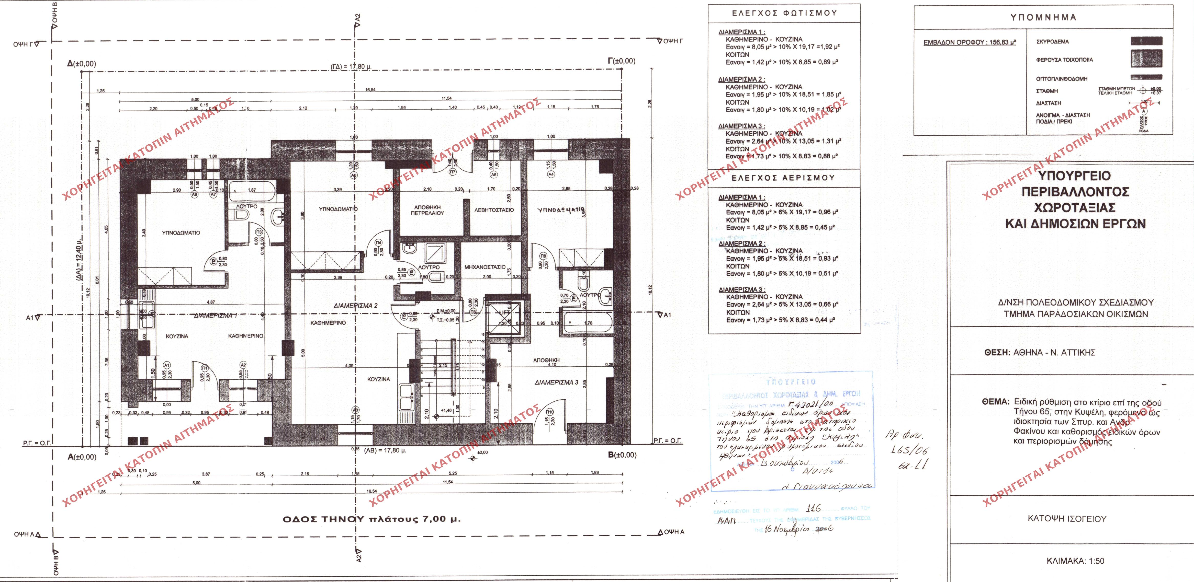
| 43695 | Π.Ε. ΑΤΤΙΚΗΣ | ΑΘΗΝΑ | - | 116 / 2006 | 42021 | ΠΡΩΤΟΤΥΠΟ | ΟΨΗ Β | Προβολή | ||
| 43696 | Π.Ε. ΑΤΤΙΚΗΣ | ΑΘΗΝΑ | - | 116 / 2006 | 42021 | ΠΡΩΤΟΤΥΠΟ | ΟΨΗ Α | Προβολή | ||
| 43697 | Π.Ε. ΑΤΤΙΚΗΣ | ΑΘΗΝΑ | - | 116 / 2006 | 42021 | ΠΡΩΤΟΤΥΠΟ | ΚΑΤΟΨΗ ΙΣΟΓΕΙΟΥ | Προβολή | ||
| 43698 | Π.Ε. ΑΤΤΙΚΗΣ | ΑΘΗΝΑ | - | 116 / 2006 | 42021 | ΠΡΩΤΟΤΥΠΟ | ΤΟΜΗ Α2 | Προβολή | ||
| 43699 | Π.Ε. ΑΤΤΙΚΗΣ | ΑΘΗΝΑ | - | 4 / 2006 | 35178 | ΠΡΩΤΟΤΥΠΟ | ΔΙΑΓΡΑΜΜΑ ΚΑΛΥΨΗΣ | Προβολή | ||
| 43700 | Π.Ε. ΑΤΤΙΚΗΣ | ΑΘΗΝΑ | - | 116 / 2006 | 42021 | ΠΡΩΤΟΤΥΠΟ | ΚΑΤΟΨΗ Γ ΟΡΟΦΟΥ | Προβολή | ||
| 43701 | Π.Ε. ΑΤΤΙΚΗΣ | ΑΘΗΝΑ | - | 116 / 2006 | 42021 | ΠΡΩΤΟΤΥΠΟ | ΟΨΗ Γ | Προβολή | ||
| 43702 | Π.Ε. ΑΤΤΙΚΗΣ | ΑΘΗΝΑ | - | 116 / 2006 | 42021 | ΠΡΩΤΟΤΥΠΟ | ΚΑΤΟΨΗ ΣΤΕΓΗΣ | Προβολή | ||
| 43703 | Π.Ε. ΑΤΤΙΚΗΣ | ΑΘΗΝΑ | - | 116 / 2006 | 42021 | ΠΡΩΤΟΤΥΠΟ | ΚΑΤΟΨΗ Α ΟΡΟΦΟΥ | Προβολή | ||
| 43704 | Π.Ε. ΑΤΤΙΚΗΣ | ΑΘΗΝΑ | - | 116 / 2006 | 42021 | ΠΡΩΤΟΤΥΠΟ | ΚΑΤΟΨΗ Β ΟΡΟΦΟΥ | Προβολή | ||
| 43705 | Π.Ε. ΑΤΤΙΚΗΣ | ΑΘΗΝΑ | - | 475 / 2005 | 16638 | ΠΡΩΤΟΤΥΠΟ | Β-Β | Προβολή | ||
| 43706 | Π.Ε. ΑΤΤΙΚΗΣ | ΑΘΗΝΑ | - | 116 / 2006 | 42021 | ΠΡΩΤΟΤΥΠΟ | ΤΟΜΗ Α1 | Προβολή |